Camp Minoh

Project Details

Project Name
Camp Minoh
Location
CharlevoixMI
Project Types
Single Family
Project Scope
New Construction
Shared By
Ayda Ayoubi
Project Status
Built
Year Completed
2018
Team

Project Description

FROM THE ARCHITECTS:

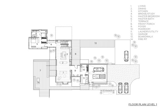
Camp MINOH is positioned to withstand the strong winter winds heading south across the lake from the Upper Peninsula and Canada. In the summer, it is ideally situated for outdoor activities and adventure. The four-bedroom, four-and-a-half-bath residence provides cozy sleeping nooks and bright, open living spaces perfect for extended family gatherings. This highly customized year-round family retreat draws upon the rustic Midwestern landscape, offering communal shelter in the depths of winter and a gathering place for long summer nights.

Of the design process, partner Daniel Kaven says, “When we begin any project, the first thing I do is walk the site, film and take pictures. During the MINOH design phase, I often reflected back on the moment of first facing the lake and its power. The home we would design needed to be equally as strong and consistent as the massive body of water seen from every room in the structure.”

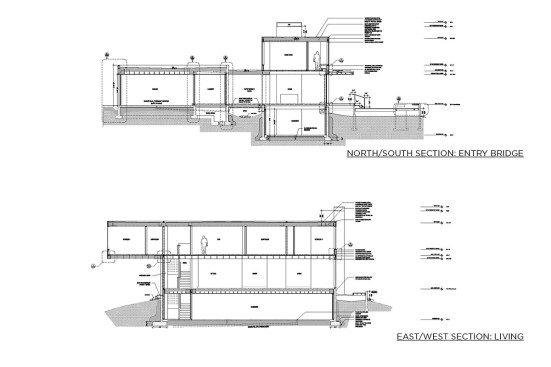
The ground floor of the home acts as the main gathering space, with a long, linear connected floor plan. Polished concrete floors stand in contrast to rugged exposed Doug Fir beams that make up the ceiling. The upper floor uses light-reflective oak accents, creating an intentional contrast to the harbored ground floor below. A dramatic cantilever extends from the upper level and frames views of the lake from the front, adding to the concept of airiness.

The exterior of the home is comprised of exposed concrete, charred wood, glass and steel. Shou Sugi Ban, a Japanese technique used to extend the life of wood, was utilized to stand up to the extreme exposure to storms and UV light on the site. The charcoal-like material is not only aesthetically pleasing, but extremely long-lasting. Inexpensive forms were used for the exterior concrete, resulting in a textured finish. Another design priority was to convey a distinct sense of tranquility, a challenge achieved by highlighting the year-round sunsets and ensuring the transparency of both levels on approach; from the road in, visitors can see clear through the house to the lake.

A short film directed by founding partner Daniel Kaven accompanied the project. Camp MINOH visually explores the retreat in the context of Michigan’s rugged terrain, diverse weather systems, and supernatural winter shores, juxtaposing detailed material studies of the structure’s polished finishes against the powerful forces of the massive lake. The film is the 3rd installment in William / Kaven’s Modern Condition film series: https://vimeo.com/danielkaven/campminohii

Upcoming Events

  • Design Smarter: Leveraging GIS, BIM, and Open Data for Better Site Selection & Collaboration

    Live Webinar

    Register for Free
  • Slate Reimagined: The Surprising Advantages of Slate Rainscreen Cladding

    Webinar

    Register Now
  • The State of Residential Design Today: Innovations and Insights from RADA-Winning Architects

    Webinar

    Register for Free
All Events