By The Hand Club for Kids

Project Details

Project Name
By The Hand Club for Kids
Location
Chicago Illinois
Architect
Team A
Project Types
Project Scope
New Construction
Shared By
sashaboglu
Project Status
Built
Year Completed
2013
Size
26,300 ft²

Project Description

FROM AIA CHICAGO:

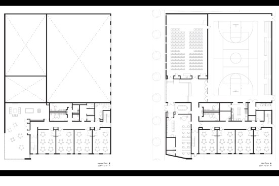
In the summer of 2013, By The Hand Club For Kids opened a brand-new 26,300 square foot facility in the Austin neighborhood. The new facility hosts (8) spacious classrooms, a reading room, sun-filled multipurpose social space for high school students, a bright gymnasium that doubles as a cafeteria, an auditorium and office area. Fulfilling the needs in Austin for a safe, nurturing environment for the neighborhood youth, the site serves 264 students annually and is open seven days a week to meet the needs of the community. The two primary objectives in the building’s design, 1) cost- effectiveness and 2) brand integration. The after-school center was largely constructed of prefabricated systems that decreased costs and improved project delivery. This savings provided opportunity to incorporate larger than life images of BTH kids into the exterior skin and interior space. At dusk the interior imagery is seen through the large storefront glass and creates continuity with the exterior and connection to the community. Through many vantage points, including visibility from the CTA and Metra rail lines, the imagery and the 50% green roof present a new optimism for change in a deserving neighborhood.

Upcoming Events

  • Slate Reimagined: The Surprising Advantages of Slate Rainscreen Cladding

    Webinar

    Register Now
  • The State of Residential Design Today: Innovations and Insights from RADA-Winning Architects

    Webinar

    Register for Free
  • Specifying Smarter with Copper-Clad Aluminum (CCA) Metal-Clad Cable

    Webinar

    Register for Free
All Events