BUSHOLMEN SCHOOL

Project Details

Project Name
BUSHOLMEN SCHOOL
Location
HelsinkiFINLAND
Architect
NOMO studio
Project Types
Education
Shared By
NOMO studio
Project Status
Concept Proposal
Year Completed
2015
Style
Modern
Team

Project Description

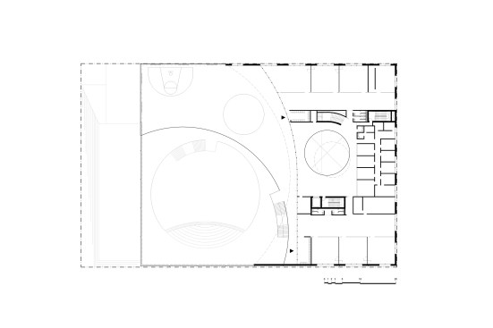
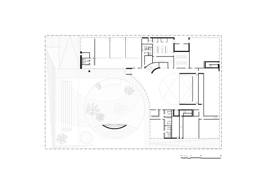
School With a unique design of a cantilevered box-like structure hoovering over its playground, the school creates an urban cityscape for the new developing area. Its multi-level exterior courtyards fill out the entire site thus increasing the outdoor spaces’ ratio and its direct connection with the classrooms. On the street level an open plaza opens up for both students and citizens. The schoolyard is divided in three vertical levels. The entrance is a completely column-free courtyard partially covered to protect from shifting weather and house activities all year round. The projected canopy is profiling the building and welcoming visitors. Bicycle parking is accessible below the roof and thoughtfully placed close to the main- and staff entrance. Sustainability The roof integrates a small energy-park with sedum grass which helps collect rainwater and adds to the city’s green areas. To protect from solar exposure and maximise daylight, the whole body is wrapped into a double skin. The building complies with the highest “Passiv-hus” standards.

Upcoming Events

  • Design Smarter: Leveraging GIS, BIM, and Open Data for Better Site Selection & Collaboration

    Live Webinar

    Register for Free
  • Slate Reimagined: The Surprising Advantages of Slate Rainscreen Cladding

    Webinar

    Register Now
  • The State of Residential Design Today: Innovations and Insights from RADA-Winning Architects

    Webinar

    Register for Free
All Events