Building Neighborhoods that Build Social and Economic Prosperity

Project Details

Project Name
Building Neighborhoods that Build Social and Economic Prosperity
Location
KigaliRwanda
Project Types
Custom
Shared By
mkrochmal
Project Status
On the Boards/In Progress
Year Completed
2013

Project Description

On the Boards / Grand
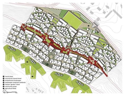
How do you transfer the social sensibility of an African village to urban hillside development? Architecture students at the University of Arkansas teamed up with the Kigali Institute of Science and Technology to deliver a convivial scheme that features diagonal pedestrian roads, flexible building types, agricultural fields, and energy generation from waste management.

The site was specific. But the proposal, presented to the Ministry of Infrastructure in Kigali, is replicable and addresses Rwanda’s hilly topog­raphy, limited resources, and rapid urbanization. “They’re amazing farmers, with co-ops and handi­craft skills,” says Stephen Luoni, Assoc. AIA, director of the University of Arkansas Community Design Center. “The people writing the checks for housing are mostly western developers and NGOs, and their vision of prosperity is the Ameri­can suburban house. This is really a policy document for Rwandans so they’ll know what to ask for.”

The 4-meter planning modules can be stacked three stories for one extended family or divided into living and working flats. Open stairways, balconies, and plazas create the social and spatial porosity that defines the village aesthetic. And with no mechanical systems to moderate the hot climate, it is important that the units breathe.

This complex project “generated a pattern for the community in response to the landscape and other forces,” a judge said. “It speaks to the interests of a lot of people coming out of school right now.” —Cheryl Weber, LEED AP

Upcoming Events

  • Design Smarter: Leveraging GIS, BIM, and Open Data for Better Site Selection & Collaboration

    Live Webinar

    Register for Free
  • Slate Reimagined: The Surprising Advantages of Slate Rainscreen Cladding

    Webinar

    Register Now
  • The State of Residential Design Today: Innovations and Insights from RADA-Winning Architects

    Webinar

    Register for Free
All Events