Brown University Performing Arts Center

Project Details

Project Name
Brown University Performing Arts Center
Location
ProvidenceRI
Architect
REX
Project Types
Education
Project Scope
New Construction
Project Status
On the Boards/In Progress
Year Completed
2022
Size
94,500 ft²

Project Description

FROM THE ARCHITECTS:

Brown University aspires to be a worldwide destination for students who want to fully integrate performing, visual, and literary arts into a complete liberal arts education. Implementing this aspiration, the Brown Arts Initiative (BAI) was created in 2017 to support all things experimental, forward-thinking, and cutting-edge in the arts; facilitate collaboration across arts departments and other academic fields; and engage activist artists and scholars whose work responds to contemporary issues.

Sited on The Walk (the campus’ main north-south pedestrian connector) in a locus of Brown arts venues, the Performing Arts Center (Brown PAC) is the physical manifestation of BAI’s vision. Stitching together Brown’s original campus with Pembroke College—fully integrated with Brown in 1971—Brown PAC establishes a new campus center defined as an incubator for both traditional and experimental art and media.

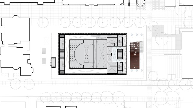
BAI’s manifold users require a space with radical spatial, acoustic, and technical flexibility—transforming amongst Experimental Media, Recital, End Stage, and Flat Floor configurations—while maintaining intimacy (typically 350 audience members or smaller). However, Brown also lacks a dedicated performance space suitable for many medium and large ensembles that already exist across academic programs and student organizations. Brown PAC must meet these needs as well, most notably an Orchestra configuration for joint performances by Brown’s renowned 100-piece symphony orchestra and 80-singer chorus, with audiences up to 625.

To house these five varied stage-audience configurations (and an array of potential secondary modes) within a single space, Brown PAC invents a new arts typology where all six surfaces of its shoebox-shaped main hall modulate physically and acoustically through automated and manually assisted performance equipment. These include: (walls) five seating gantries and a perimeter ring of retractable acoustic curtains; (ceiling) forty adjustable acoustic reflector panels, seven motorized utility battens, and three lighting bridges; and (floor) two stage lifts, three seating wagon lifts, and numerous stage risers and seating wagons. This equipment is augmented by professional touring grade amplification, multi-channel ‘ambisonic’ audio, immersive video and scenic projection, and a full complement of fixed lighting.

Embodying Brown’s commitment to infusing the arts into all intellectual pursuits, a ‘Clearstory’ slices through the entire building at stage level, allowing—when desired—performances, rehearsals, and research to spill out onto campus, and for the university at large to vicariously engage the constant creation of art. Light can be completely blocked by a perimeter drape. Additional scrims and blackouts can be installed inboard of the glass to negate interior reflections, or to create visually-controlled circulation within the acoustic volume for performers, stage-hands, and patrons.

The Clearstory establishes the stage-level acoustic volume with a rectilinear glass enclosure of 50 mm (2 inch) laminated, frameless glazing, the mass of which provides a warm, full frequency reflection of musical sound. A second, inner line of similarly detailed glass arcs (suspended from, and moving with, the gantries) are shaped to distribute sound throughout the stage and audience areas. Openings between the arcs allow a portion of the sound to escape into the void beyond, helping to control loudness while sufficiently containing acoustic energy for an engaging, immersive experience.

For Brown PAC to provide appropriate lobby space and engage its surroundings, the Clearstory is expanded on three of its four sides. On the east, facing the Perry & Marty Granoff Center for the Creative Arts, the Clearstory cantilevers 35 feet towards The Walk, forming a dramatic main lobby with views over campus. The cantilever protects the main entrance and its tribune, used for outdoor performances, student orientations, and other informal uses. On the south, the Clearstory extends 7 feet to form the Promenade, a passerelle to view the creation of art. On the west, the Clearstory cantilevers 14 feet to make an assembly area for performers prior to entering the main hall.

In addition to the main hall, the building contains three additional venues, including (shown left to right in the above section): a dance rehearsal room, doubling as a 110-seat informal dance performance space; a theater rehearsal, doubling as a 50-seat small performance space; and an orchestra rehearsal room, doubling as a 165-seat performance space for smaller ensembles. Each of these spaces has a pipe grid and connection points on the walls for lighting, audio, and video technology.

Brown PAC’s main volume is shrink-wrapped in an extruded aluminum rainscreen, composed of a fractal-like fluted geometry. The multiple scales of the flutes, and their bas relief, is a subtle nod to Providence’s predominantly brick and wood-clad building stock, where flat glass or metal panel facades seem anathema.

Brown PAC is a ‘new animal,’ a radically flexible yet extremely precise arts typology where performance is not the final product, but another piece of vital research in the creation—and pedagogy—of groundbreaking art and arts leaders.

Project Credits
Project: Brown University Performing Arts Center, Providence, R.I.
Client: Brown University, Providence, R.I.
Architect: REX, Brooklyn, N.Y.
Consultants: Arup, Atelier Ten, Cost Plus, Front, GEI, Jensen Hughes, L'Observatoire, Magnusson Klemencic, Odeh, Skyline, Stephen Turner, Stephen Stimson, Theatre Projects, Thornton Tomasetti, Threshold, Vanasse Hangen Brustlin, Woodard & Curran
Contractor: Shawmut

Upcoming Events

  • Design Smarter: Leveraging GIS, BIM, and Open Data for Better Site Selection & Collaboration

    Live Webinar

    Register for Free
  • Slate Reimagined: The Surprising Advantages of Slate Rainscreen Cladding

    Webinar

    Register Now
  • The State of Residential Design Today: Innovations and Insights from RADA-Winning Architects

    Webinar

    Register for Free
All Events