Brown Bar

Project Details

Project Name
Brown Bar
Location
MathiasWV
Project Types
Single Family
Project Scope
New Construction
Shared By
UGC User
Project Status
Built
Year Completed
2008
Style
Modern
Size
2,000 ft²
Team
Principal: Joseph Tanney
Principal: Robert Luntz
Project Architect: John Kim

Project Description

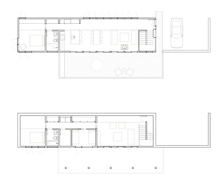
Brown Bar (aka Lost River Modern) is a modern cabin nestled in the woods with all the amenities of a full-time home. Two hours west of Washington D.C. in scenic Lost River, West Virginia, the cabin is a getaway for a young family. It is completely immersed in the landscape and can accommodate up to eight people. Set into the side of a steeply sloped site on a concrete foundation, the home boasts walls of glass, which extend the space into the tree canopy. The main level features a master suite along with the open kitchen/living/dining area. The adjacent ipe deck expands the living area to the exterior and is the perfect setting to relax and take in the natural surroundings. The living area is filled with natural light, and features a wood-burning stove to keep warm in the winter months. The lower level is a walkout basement with polished concrete floors and is complete with a media room, bedroom, bathroom, mechanical room and bunkroom for the kids. The single bar typology is 16’ wide by 64’ long, the largest module the factory can produce, thus maximizing the efficiencies of implementation within the factory, while minimizing the work onsite. The 2,000 sf home is wrapped in cedar siding and seeks to blend into the surrounding landscape. The beautiful natural setting leaves only light, sound and space vying for attention.

Upcoming Events

  • Design Smarter: Leveraging GIS, BIM, and Open Data for Better Site Selection & Collaboration

    Live Webinar

    Register for Free
  • Slate Reimagined: The Surprising Advantages of Slate Rainscreen Cladding

    Webinar

    Register Now
  • The State of Residential Design Today: Innovations and Insights from RADA-Winning Architects

    Webinar

    Register for Free
All Events