Brooklyn Row House

Project Details

Project Name
Brooklyn Row House
Project Types
Multifamily
Shared By
Office of Architecture
Project Status
Built
Year Completed
2015

Project Description

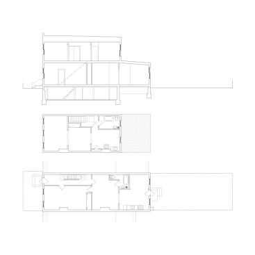
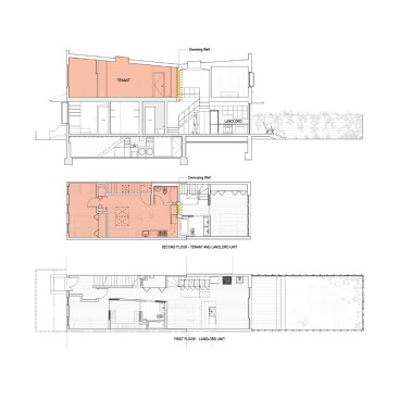
When we were approached by our clients to gut renovate and add to a 110 year old, 15′ wide row house, our goal was to create a home that could adapt to change over time. The building is designed to oscillate easily between a two-family and one-family configuration, giving the owners the ability to gradually grow into and out of the house as needed. 70% of the building can be used as a 2 bedroom / 2 bath unit, while the remaining 30% of the building is given over to a 1 bedroom/ 1 bath unit. Depending on their priorities at any given time, the owners have the option to occupy one of the units themselves, while using the other for rental income. It also gives the owners the ability to combine both units to create a 2100SF one-family home for themselves simply by removing a small demising wall on the second floor and demolishing the rental kitchen – a job that can be executed over the course of a long weekend. Elegant material choices, subtle detailing, and thoughtful spatial sensibilities belie the building’s intelligent space planning. Careful placement of bathrooms and kitchens, along with the integration of a second stair (highly unusual for a row-house this size) enable the architecture to accommodate its owners as their needs evolve from that of a young couple to a family of four to empty nesters. In doing so, the building becomes much more an active participant in the life of its inhabitants – always ready to anticipate and absorb change.

Upcoming Events

  • Build-to-Rent Conference

    JW Marriott Phoenix Desert Ridge

    Register Now
  • Reimagining Sense of Place: Materiality, Spatial Form, and Connections to Nature

    Webinar

    Register for Free
  • Homes that Last: How Architects Are Designing a Resilient Future

    Webinar

    Register Now
All Events