Brooklyn Navy Yard Center

Project Details

Project Name
Brooklyn Navy Yard Center
Project Types
Shared By
mohan reddy
Project Status
Built
Size
34,000 ft²

Project Description

Community Projects
Workshop/Apd And Beyer Blinder Belle Restored An 1857 Commandant’s House And Added A Sleek New Addition, Breathing New Life Into The Disused Industrial Site On The Brooklyn Waterfront.

Since its 1966 decommissioning, the Brooklyn Navy Yard has largely resisted urban renewal, hemmed in as it is by stone walls, its crumbling structures visible through barbed wire. But a champion has emerged in the form of the Brooklyn Navy Yard Development Corp.—a nonprofit spurred by the successful reuse of other forlorn swaths of the city. Now the Yard is being re­invented as an enclave of modern industry.

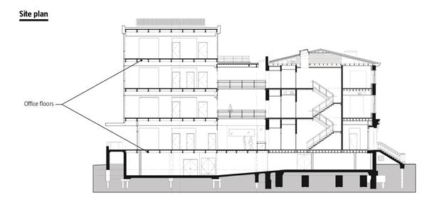
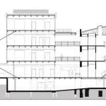
Appropriate to the site’s changing identity, the Brooklyn Navy Yard Center, designed by New York firms Workshop/apd and Beyer Blinder Belle, combines old and new: The restored 9,500-square-foot Building 92, built in 1857 and used as the Marine Commandant’s House, is connected to a new 24,500-square-foot addition by a three-story lobby. Like so many other Navy Yard facilities, Building 92 had fallen into extreme disrepair. “There were holes through the floors, holes in the walls, and the entire southeast corner had settled,” says Elizabeth Leber, AIA, a partner at Beyer Blinder Belle. “It was really just a shell.” In an effort to resuscitate the brick-and-wood joist structure, the architects inserted drilled displacement piles and grade beams to give the building a stable foundation, and stainless steel helical ties and grout injection helped shore up the shell. Working from historical documents, the architects preserved as many original architectural details as possible.

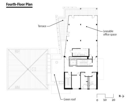
While most of the historic building is designated for gallery space with exhibits touting the history of the site, the addition to the north adds meeting and education areas, as well as leasable office space to bring more businesses to the Yard. The new wing also features a rooftop café, terrace, and green roof. The glass-and-steel structure injects a distinctly modern aesthetic into the historic property. “We wanted a contrast between old and new,” notes Workshop/apd partner Matthew Berman, Assoc. AIA.

The architects clad the addition’s north and east elevations in corrugated metal, tying it into the site’s industrial vernacular. On the south, a glass curtainwall shrouded by a perforated metal screen offers views to a forecourt designed by Julie Bargmann of D.I.R.T. Studio and to the city beyond. The screen provides a defense against solar gain (the architects are targeting the project for LEED Platinum certification), but the laser-cut perforation pattern, derived from an abstracted 1936 photograph of the U.S.S. Brooklyn, also offers a contemporary response to the original building’s historic ornamentation. “We wanted the new building to act in deference to the historic one,” Berman says. “The metal screen is almost like a theater curtain, pulling back to reveal the old Commandant’s house.”

Context
Historical accounts of New York’s land use often begin in 1811, when city commissioners dreamed up a grid that would blanket Manhattan. Like a Big Bang theory of urban design, the rest of the city, we are left to assume, bursts forth from this germinal moment of genius. But this premise ignores the specific patterns of development in the far larger outer boroughs, which then were independent municipalities.

The Brooklyn Navy Yard offers a telling counterpoint to the 1811 narrative, highlighting the evolution and conflicts of the borough’s development. Ten years before the auspicious meeting of commissioners, the U.S. government bought the land that would become the Yard. Emblematic of urban design in the industrial age, the 300-acre parcel, located directly on the waterfront, was devoted to a single industry—shipbuilding—and created manufacturing jobs for tens of thousands of local residents. Thus the Yard’s decommissioning in 1966 created a dire economic and urbanistic void in the borough.

Today, the Michael van Valkenburgh–designed Brooklyn Bridge Park to the south of the Yard has activated a long stretch of the East River. To the north, the Williamsburg waterfront has developed apace with residential towers and pocket parks. But sandwiched between these two changing areas, the Navy Yard has, until now, struggled to instigate its own renaissance. The Brooklyn Navy Yard Development Corp. has set out to transform the hulking district into a 21st century exemplar of U.S. manufacturing. Unlike the monolith of the past, today’s Navy Yard is filled with a bevy of smaller, diverse practices. Outfits that produce sugar packets and subway signs are interspersed with areas for filming movies and even a handful of architectural offices.

Building 92 has been the pivot for all of this change. Positioned along Flushing Avenue, a busy thoroughfare, the structure is sited at one of the Yard’s closest points to the creative-class enclaves of Fort Greene and DUMBO. And its combination of cultural programming and leasable space for business can be a model for future development. With the Navy Yard Center, the neighborhood has become publicly—and unprecedentedly—accessible.

Landscape
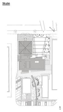
Even with a great demand for more space on the site, the architects at Beyer Blinder Belle and Workshop/apd were determined to avoid overwhelming the historic structure with a new building, choosing, instead, to keep the footprint small, relative to the available property. “We had this reverence for the site and its history, but we also had a reverence for this little building,” explains Workshop/apd partner Matthew Berman. By placing the addition at the rear of the site, away from Flushing Avenue, the design team cleared out an amply sized forecourt. Working with landscape architect Julie Bargmann, the principal of New York’s D.I.R.T. Studio, the designers were able to transform the entire site into an active landscape, including a forecourt on the Flushing Avenue side of the site. “The forecourt had to really multitask,” Bargmann says. “It needs to work for both on a small, intimate scale, but it also needs to accommodate large groups,” she adds, citing the building opening overseen by New York City Mayor Michael Bloomberg. Small tables and benches—supported by reclaimed steel and shaded by river birch trees—divide the plaza into smaller sections.

Behind the Navy Yard Center, and connecting the new space with the rest of the yard, Bargmann designed what she calls a “rough-and-tumble” landscape, densely planted with native species, and meant to acknowledge the site’s own gritty history and its decades of neglected overgrowth. Known as the “boneyard,” it’s meant to contrast with the refined public-facing forecourt.

But the landscape is not just for gathering. In keeping with Bargmann’s longstanding design philosophy, it does some environmental heavy lifting, too. Designed to be as permeable as possible, the site mitigates runoff, and native plants reduce irrigation demands. Reused materials—steel and concrete—come directly from demolitions on the site. “These urban, industrial sites are like archaeological digs,” Bargmann says. “It’s one thing to be sustainable, but it’s another to have the landscape be literally of the place.”

Upcoming Events

  • Design Smarter: Leveraging GIS, BIM, and Open Data for Better Site Selection & Collaboration

    Live Webinar

    Register for Free
  • Slate Reimagined: The Surprising Advantages of Slate Rainscreen Cladding

    Webinar

    Register Now
  • The State of Residential Design Today: Innovations and Insights from RADA-Winning Architects

    Webinar

    Register for Free
All Events