Bronx Children’s Museum

Project Details

Project Name
Bronx Children’s Museum
Location
The BronxNY
Project Types
Cultural
Project Scope
Adaptive Reuse
Shared By
Andrea Timpano
Project Status
Built
Year Completed
2022
Size
15,160 ft²

Project Description

This project was selected as a Merit winner in ARCHITECT’s 2023 Architecture & Interiors Awards, Interiors: Civic and Cultural category.

“It’s a wonderful place for children to move and flow through the spaces … it’s an exuberant counterpoint to the historical industrial box.” — Juror Susan T. Rodriguez, FAIA

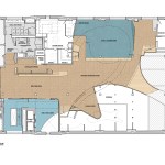
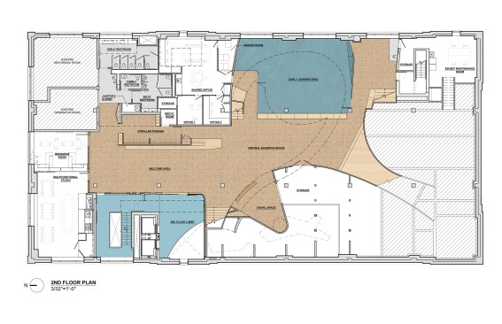
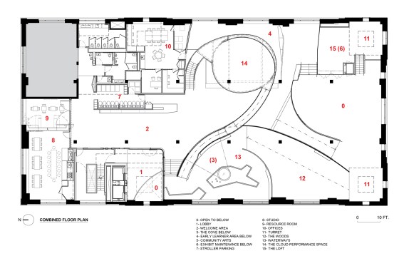
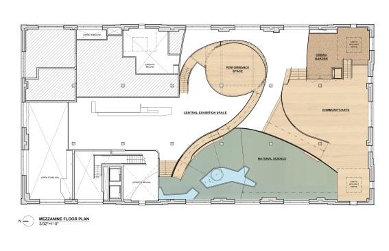
For the Bronx Children’s Museum, Brooklyn-based O’Neill McVoy Architects hopped the D train, bringing with it a design that gives New York’s northern borough a glittering new civic amenity just steps from Yankee Stadium. The adaptive reuse project occupies a former industrial facility on the Harlem River water­front in a neighborhood undergoing rapid transformation, providing a vital amenity to the diverse and long-underserved South Bronx community.

The designers’ solution is appropriately playful, yet surprisingly refined: Making extensive use of precision-cut, cross-laminated timber, the interior is a fantasia of improbable loops and twists, with the minimal materiality and exposed original structure adding just the right note of city-kid cool. Following an intuitive procession from the first to the second floor, visitors move easily through an environment full of opportunities to learn as well as to have fun, where parents can be part of the action or sit down and enjoy the spectacular views of Upper Manhattan. Advancing a sophisticated vision for the landscape of childhood, O’Neill McVoy has given New Yorkers of all ages a great reason to follow them uptown.

PROJECT CREDITS
Project: Bronx Children’s Museum
Architect: O’Neill McVoy Achitects, Brooklyn, N.Y. Beth O’Neill, AIA, Chris McVoy (principals); Ruso Margishvili (associate-in-charge); Richard Stora (project architect); Penelope Phylactopoulos, Meghan O’Shea, Trevor Hollyn Taub, Irmak Ciftci (project team)
Mechanical/Electrical Engineer: Plus Group Consulting Engineering, PLCC
Structural Engineer: Silman
General Contractor: A Quest Corporation
Lighting Designer: Tillotson Design Associates
Other Consultants: CODE LLC (code consultant); ADS Engineers (LEED consultant); TM Technology Partners (AV/IT/security consultant)

MATERIALS AND SOURCES
Acoustical System: Sonacoustic Plaster Ceilings
Carpet: Interface
Cabinets: Knossos
Ceilings: Acoustical ceilings: Sonacoustic; perforated acoustical CLT ceiling panels: KLH & Knossos
Concrete sinks and counters: Get Real Surfaces
Countertops: Corian
Fabrics and Finishes: Newmat stretched-fabric walls and ceilings
Flooring: Kaswell Flooring Systems end-grain wood flooring; Pebble Tile floor and wall tile; Forbo resilient flooring
Furniture: Herman Miller; Steelcase; SitOnIt; Community Playthings; School Outfitters
Glass: PPG; Walker Glass Co.; Pilkington; Technical Glass Products; 3form
HVAC: Ductsox
Lighting Control Systems: Crestron
Lighting: Ketra; Feelux; LED Linear; Ecosense; Lighting Services Inc; Soraa; Vode Lighting; Pinnacle; Bartco
Paints and Finishes: Benjamin Moore; Sansin
Structural System: Cross-Laminated-Timber by KLH US Holding Corp. and steel framing
Walls: Cross-Laminated Timber by KLH US Holding Corp. and steel stud partitions with gypsum wall board
Windows: Custom Cross-Laminated-Timber (wood frame); Nanawall (metal frame)
Doors: Custom Cross-Laminated Timber pivot and sliding assembly (entrances); Cross-Laminated-Timber Doors by KLH (wood doors); VT Industries (flush wood doors); KLH Cross-Laminated-Timber (siding doors); Total Door Systems (fire-control doors)

Upcoming Events

  • Design Smarter: Leveraging GIS, BIM, and Open Data for Better Site Selection & Collaboration

    Live Webinar

    Register for Free
  • Slate Reimagined: The Surprising Advantages of Slate Rainscreen Cladding

    Webinar

    Register Now
  • The State of Residential Design Today: Innovations and Insights from RADA-Winning Architects

    Webinar

    Register for Free
All Events