Brickyard Station

Project Details

Project Name
Brickyard Station
Project Types
Planning
Shared By
dmadsen
Project Status
Built
Size
750,000 ft²

Project Description

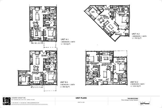
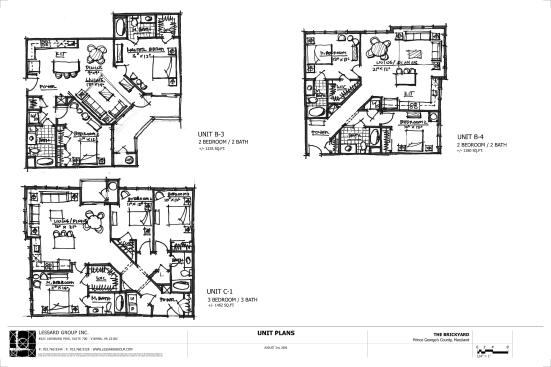
Brickyard Station is a 63 acre mixed-use development located in Prince George’s County, Maryland. The first phase of construction includes 433 apartment units, 5,300 square feet of retail space, and more than 13,900 square feet of amenity space creating a transit-oriented community. Brickyard’s 4- and 5-story buildings contain 1,200 residential units and 750,000 square feet of commercial space. This project deserves the Builder’s Choice Award for Urban Planning for its success in creating a place that supports economic development, environmental improvement, educational growth, and safe and clean streets. The pedestrian-friendly campus also offers walking and biking trails as well as large open green spaces making it an ideal place for transit-oriented individuals to live close to work and also be able to achieve maximum work-life balance.

Upcoming Events

  • Build-to-Rent Conference

    JW Marriott Phoenix Desert Ridge

    Register Now
  • Reimagining Sense of Place: Materiality, Spatial Form, and Connections to Nature

    Webinar

    Register for Free
  • Homes that Last: How Architects Are Designing a Resilient Future

    Webinar

    Register Now
All Events