Brick Cave

Project Details

Project Name
Brick Cave
Location
HanoiVIET NAM100000
Architect
H&P Architects
Project Types
Single Family
Shared By
Doan Thanh Ha
Project Status
Built
Year Completed
2017
Team

Project Description

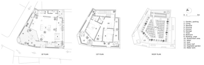
Brick Cave The house is located in a suburban commune of Hanoi which has undergone a rapid process of urbanization. It is designedin a philosophy that it will help shape a place similar to the natural environment in an artificial manner. The proposed structure of the house resembles that of a Cave. The overall structure is made up of and enclosed by two layers of brick wall meeting one another at an intersection, with alternate ‘green’ arrangements of plants and vegetables. Bricks have long been a familiar local material and widely used in rural areas of Vietnam with a simple manual construction method. The two built-in layersof wall function as a filter to eliminate the adverse aspects of the external environment (sunshine from the west, dust, noise) and bring nature (light, rain, wind) to where necessary inside. Above the outer wall is tilted inward in different diagonals to create better viewing angles for the general landscape of the area.This, at the same time, helps users in various corners inside the house sense Time and Weather through shadow and air. Brick Cave encompasses a chain of space interconnected one another with random apertures gradually shifting from openness/publicity to closeness/privacy and vice versa. The combination of “close” and “open” creates diverse relations with the surroundings and thus helps blur the boundaries between in and out, houses and streets / alleys, Human and Nature. Brick Cave reminds its users of emotional pieces of both strangeness and familiarityby offering them images of corners of a yard, expanses of the sky,strips of a garden, and parts of an alley… which is tentative to uses of space at different times in a typical tropical monsoon climate of the North of Vietnam. This, therefore,truly brings to users an interesting and enjoyable experience as they are accommodated in a sense of a large open space harmonized with a comfort of a safe shelter.

Upcoming Events

  • Design Smarter: Leveraging GIS, BIM, and Open Data for Better Site Selection & Collaboration

    Live Webinar

    Register for Free
  • Slate Reimagined: The Surprising Advantages of Slate Rainscreen Cladding

    Webinar

    Register Now
  • The State of Residential Design Today: Innovations and Insights from RADA-Winning Architects

    Webinar

    Register for Free
All Events