Brammer Chapel and Center for Art & Communication

Project Details

Project Name
Brammer Chapel and Center for Art & Communication
Location
2802 Wetmore AveEverettWAUSA
Project Types
Religious
Project Scope
Renovation/Remodel
Shared By
Dan Nelson
Project Status
Built
Year Completed
2014
Style
Modern
Size
12,000 ft²
Team
Principal Architect: Dan Nelson, AIA

Project Description

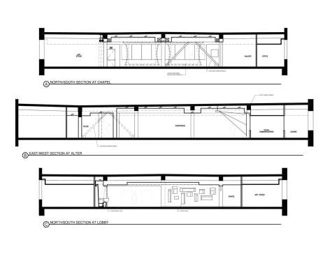
The entire Fifth floor (12,000 sf ) of Trinity Lutheran College’s existing building in downtown Everett was remodeled into the Brammer Chapel and Center for Visual Communications.

The program included a flexible area for worship and lectures, a dedicated area for a new visual communications lab, student and faculty lounge, art studio space, music and sound room, day care, offices for the college president, staff offices and art gallery space.

The college wanted a space that reinforced the collaboration between traditional worship and new forms of media used to convey belief. They wanted a chapel that allowed students and faculty to use the space as a flexible creative space that could evolve with changing uses and worship styles.

The philosophical aspects of the design brief were for the chapel to visually and experientially serve as a microcosm for the college’s values, stressing the importance of spirituality, creativity and innovation, digital learning across the curriculum, and porous boundaries between faith, learning and service.

This led the design team to think about the use of light and projection media as well as flexibility in how the chapel was configured. We began to consider the space as a multi faceted studio that could be opened up with movable partitions in different ways to control space as well as light.

As one gets off the elevator and enters the foyer a curved wall welcomes visitors into the worship/lecture space. The foyer has a baptismal font to the south and a small side chapel to the north (These are the integrated sacraments that act as the continual reminder of God’s gifts.) A porous wall with niches for symbols of the sacraments and sacred art separates the hall that leads to the president’s offices and the foyer.

When the existing walls of the fifth floor were removed, the space opened up to spectacular views of the Cascade Mountains to the east and sound/river views to the north. As a result, it became important to take advantage of the views from as many areas as possible. This led to the concept of placing the visual communications lab between the worship space and the student lounge. Glass walls allow a visual connection from the worship/lecture space to the outside. It also encourages potential interaction between the students in the lab and activities taking place in the worship/lecture space.

When the worship space is in use, roll down screens block the glass and curtains are drawn from the sides to enclose the space for light control and projected images.

The art studio to the north can be opened up to worship/lecture space or it can be screened off for workshops.

The budget of the project was approximately $650,000.00, so cost effective construction was important for the success of the project. The ceilings in the art studio, gallery, and lounge area were left exposed. The insulation was painted black as well as duct work and electrical conduit. The existing concrete floors were resurfaced. The foyer with baptismal font, side chapel and worship/lecture space have finished ceilings giving these areas more significance.

Colors for Brammer Chapel were selected to represent different aspects of the Christian faith.

• Green – Spiritual growth and the triumph of life over death
• Blue – Water, Baptism and Holy Service
• Orange – Radiance of God
• Purple – Advent
• Grey – Purification
• Red – Fire of Pentecost
• White – Righteousness

Upcoming Events

  • Design Smarter: Leveraging GIS, BIM, and Open Data for Better Site Selection & Collaboration

    Live Webinar

    Register for Free
  • Slate Reimagined: The Surprising Advantages of Slate Rainscreen Cladding

    Webinar

    Register Now
  • The State of Residential Design Today: Innovations and Insights from RADA-Winning Architects

    Webinar

    Register for Free
All Events