Bowen Kitchen

Project Details

Project Name
Bowen Kitchen
Architect
ORA
Project Types
Single Family
Project Status
Built
Year Completed
2016
Size
3,500 ft²

Project Description

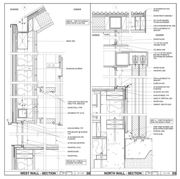
This 3,500sf traditional family home located in Manhattan Beach suffered from an outdated living and kitchen addition built in the 1980s. The Owner wanted to rework these spaces to improve the flow through the house, maximize indoor and outdoor entertaining areas and create a space to showcase a growing art collection. By removing the addition completely and starting fresh with a new building envelope, the 820sf remodel added 70sf of interior space and a 545sf patio to the existing home. The design brief was to create a light-filled space with rustic and industrial inspired materials and details. An asymmetric roof of corrugated metal, douglas fir beams and knotty cedar boards enclose the barn-like space, unfolding to become the kitchen wall to the west. To the east, the roof floats over a hand-troweled plaster wall in the living room, extending to the patio outside. This modern form creates its own unique identity in contrast to the existing traditional home. The transition between the existing building and the new space was widened and a tall walnut cabinet box was inserted in the opening, demarcating the transition between old to new and traditional to modern. The design team collaborated with local craftsmen to produce the custom metal and wood pieces that define the space. Open kitchen shelves between wood posts display a glass and ceramics collection concealed by vintage pebbled glass in sliding steel frames. Movable artwork on a steel track hides the television in the living area. A 15-foot steel frame and distressed wood island is topped with a custom polished pebble terrazzo countertop inspired by a trip to California’s Central Coast. Warmer accents include walnut cabinets and a stained douglas fir end grain wood floor. The design takes full advantage of Southern California’s temperate beach climate. West facing clerestory windows bring natural daylight light deeper into the space and capture ocean breezes, negating the need for air-conditioning while maintaining privacy on the narrow beach lot. Deep overhangs protect the north-west facing glass façade from heat gain. A frameless glass corner and oversized douglas fir barn doors on this façade create strong connections between the indoor spaces and the new patio. Wide concrete steps from the patio terrace down to a dining area in the garden below. Integrated with planting and a built-in wood bench, the steps create a natural hang-out area while addressing a significant grade change between the patio and the back yard. The project was completed in April, 2016.

Upcoming Events

  • Design Smarter: Leveraging GIS, BIM, and Open Data for Better Site Selection & Collaboration

    Live Webinar

    Register for Free
  • Slate Reimagined: The Surprising Advantages of Slate Rainscreen Cladding

    Webinar

    Register Now
  • The State of Residential Design Today: Innovations and Insights from RADA-Winning Architects

    Webinar

    Register for Free
All Events