Boetger Residence

Project Details

Project Name
Boetger Residence
Project Scope
New Construction
Shared By
Ashleigh Popera
Project Status
Built
Year Completed
2016
Size
2,789 ft²

Project Description

FROM THE ARCHITECTS:

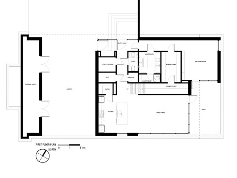
The Boetger Residence is designed for a young couple, their son, and the family dog. Moving from a downtown Knoxville loft apartment, the design for the new home needed to reflect those aspects of the loft they had grown to love – open interior spaces and ample views. Located on an overgrown and under-utilized lot within the 90+ year old Holston Hills neighborhood, the design emphasizes views of the adjacent Holston River, embraces natural light, and maximizes programmatic and energy efficiency. The home respects the scale of the adjacent traditionally styled homes while drawing inspiration from the few respected mid-century modern residences located within the neighborhood. The program is organized to celebrate views of the Holston River, beginning with the approach at the carport and carrying through the living, dining, and family areas of the home. Every living and sleeping area is provided generous floor to ceiling windows and each hallway is terminated with a glass wall- all framing views of the landscape beyond. The interior material color palette and detailing is restrained to minimize distraction and place importance on views of the exterior; with the first level being a celebration of white accented against the wood flooring of the second level.

The home is designed to maximize energy efficiency using passive strategies. Carefully considered building orientation allows for a southern exposure of windows to capture the warmth provided by low winter sun while overhangs created by the building form provide shade during the warmer summer months. The exterior walls of the house feature an optimized framing strategy as well as a continuous insulation wrap to minimize any thermal bridging and create an air tight exterior envelope. Along with energy efficient LED lighting and HVAC equipment, the current electrical consumption of the home is 50% less than a home of similar size.

Upcoming Events

  • Design Smarter: Leveraging GIS, BIM, and Open Data for Better Site Selection & Collaboration

    Live Webinar

    Register for Free
  • Slate Reimagined: The Surprising Advantages of Slate Rainscreen Cladding

    Webinar

    Register Now
  • The State of Residential Design Today: Innovations and Insights from RADA-Winning Architects

    Webinar

    Register for Free
All Events