Blue Ridge Farmhouse Addition

Project Details

Project Name
Blue Ridge Farmhouse Addition
Project Types
Guest House
Project Scope
Addition/Expansion
Shared By
babaiah
Project Status
Concept Proposal
Room or Space

Project Description

2003 RADA
Project Of The Year

When Bob Gurney’s clients asked him to design an addition to their 1799 farmhouse in the rolling hills of Washington, Va., his first instinct was to imagine a Modern glass pavilion. “It seemed more respectful than a seamless composition,” he says. “I wanted there to be no doubt about what was old and what was new.”

An internal reality check followed that initial reaction. The architect’s pragmatic side doubted that the couple would accept the notion of annexing such a Modern piece to their beloved old house. Then the husband showed him a book on one of his favorite projects, Philip Johnson’s Glass House. “I was apprehensive about proposing something so Modern,” Gurney says. “But when the client pulled out the book on the Glass House, I realized they might be into the idea.”

They were indeed. And they were very specific about their program. They asked Gurney for a new, expansive living and dining room to accommodate their growing family. Avid horseback riders and gardeners, the couple also needed a first-floor mudroom and bath where they could clean up after a day spent outdoors. And they wanted to add a bit of formality to the home’s rear entrance, because most of their guests enter that way.

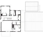
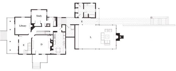
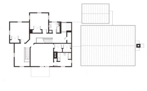
Gurney divided the addition into three parts. The steel-and-glass pavilion he first envisioned holds the living and dining room. Its roofline echoes that of the main house, and its transparent walls bring in views of the surrounding farmland as well as the distant Blue Ridge Mountains. “The room changes with the seasons and even with the time of day,” notes builder Chris Stanton. A tall, narrow, clapboard structure containing the mudroom and bath is the second component, providing a vertical counterpart to balance out the more horizontal pavilion.

Designing the third section of the addition–the hall, stairway, and remodeled kitchen that together serve as the connective tissue between the new and old portions of the house–was the trickiest. Gurney combined elements consistent with the existing house, like heart-pine floors and a paneled pantry door, with more Modern items representing the newer portion: crisp white drywall, large panes of glass, and contemporary light fixtures. In the kitchen, he specified stainless steel appliances and clean-lined cherry cabinetry but left the original windows intact, wavy glass and all.

The stair hall forms an axis that subdivides the living/dining room and the mudroom, and continues outside to Gurney’s minimally designed entry path. The path not only supplies the sense of arrival the owners wished for, but also helps link the farmhouse to its nearby outbuildings. “The addition makes you look harder at the older parts of the house,” said one judge. “We could talk about this project all day,” agreed another. “It is beautiful at every level.”

Upcoming Events

  • Design Smarter: Leveraging GIS, BIM, and Open Data for Better Site Selection & Collaboration

    Live Webinar

    Register for Free
  • Slate Reimagined: The Surprising Advantages of Slate Rainscreen Cladding

    Webinar

    Register Now
  • The State of Residential Design Today: Innovations and Insights from RADA-Winning Architects

    Webinar

    Register for Free
All Events