Block Houses

Project Details

Project Name
Block Houses
Location
SeattleWA
Architect
Block Project
Project Types
Outbuilding
Project Scope
New Construction
Shared By
Madeleine D’Angelo
Project Status
Built
Year Completed
2022
Size
230 ft²

Project Description

This article first appeared in ARCHITECT’s October 2022 issue as part of the magazine’s ‘Housing Innovators‘ coverage.

In Seattle, the United States city with the third-largest population of unsheltered residents, folks at the local nonprofit Block Project like to say that the problem with homelessness is a lack of proximity. “When you get closer to the people experiencing it, you start to see your shared humanity and that, we say, is the beginning of the solution,” explains Bernard Troyer, the Block Project construction manager.

Founded in 2017 by the local architects Rex Holbein and Jenn LaFreniere, Block Project aims to foster proximity—and community—in the built environment by allowing homeowners to volunteer their land to host a fully equipped, permitted, and modular 230-square-foot Block House while Block Project volunteers and staff offer its resident continued support. In a country where inhabitants often have a possessive sense of land ownership and where urban areas are shaped by single-family zoning policies, this quietly radical project could offer a housing blueprint for richly diverse and connected urban networks.

Stemming from Holbein’s Facing Homelessness nonprofit, Block Project began with a single residence: Block Home 0001 in Seattle’s North Beacon Hill neighborhood. The project expanded—replicating the original design in host yards across the city—thanks to support from local volunteers and private donors, many of whom work in the AEC industry. When it came time to build the 10th Block residence, Block Project leadership convened a 2019 design charrette to reimagine the Block House in response to resident feedback. Suggestions included “more space for a taller fridge, more space for storage, a different kind of flooring,” recalls Phoebe Anderson-Kline, the Block community programs manager. “We’re making sure that the homes are reflective of needs of people living in them.”

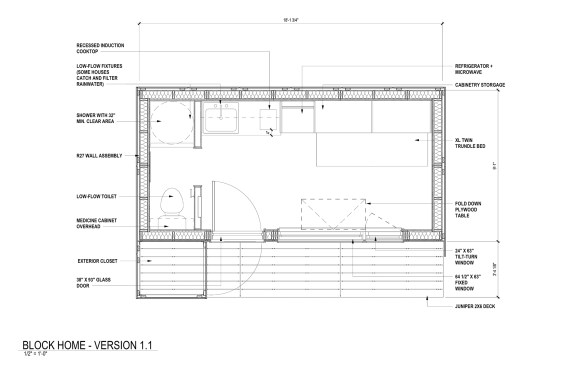
The new Block houses also value efficiency at a premium: Each residence contains 130 square feet of living space, a kitchenette, and a bathroom. “We’re trying to maximize the number of backyards we can put them in,” Troyer says. Plus, in a city where traditional affordable housing can cost approximately $330,000 and take years to develop, each redesigned Block House costs $75,000 and can be built in six months.

The breathtaking speed of the Block houses comes from a process that Troyer likens to “IKEA furniture on steroids.” Volunteers prefabricate components of each residence at the Block Workshop in Seattle’s Georgetown neighborhood. From there, the modules can be assembled—and disassembled and reused—in backyards around the city. The simple design becomes a blank canvas, seamlessly adapting to different settings, varied resident needs, and the unique relationships between each resident and host.

The houses—which are currently being evaluated for Living Building Challenge certification, a rigorous green building benchmark—also exemplify a careful environmental consideration. Sustainably harvested juniper wood—an invasive species choking out biodiversity in Eastern Oregon—wraps around the Block residence exterior as decking and rainscreen siding. Havelock wool offers high-performance insulation in the walls and cork provides a comfortable yet sustainable flooring option.

With Block Home 0013 recently completed in July and with a collaboration with the Indigenous-led, Rapid City, S.D.–based advocacy group NDN Collective already on the way, Block Project hopes to expand “in a way that other people can learn from us,” Troyer says. “We’d love to grow the mission here in Seattle and get into more neighborhoods and give more folks an option of living in a Block Home, but we’re no silver bullet. We’re meant to be on a growing menu of options for housing needs.”

Project Credits
Project: Block Houses, Seattle.
Architects: Block Project, Seattle.

Upcoming Events

  • Design Smarter: Leveraging GIS, BIM, and Open Data for Better Site Selection & Collaboration

    Live Webinar

    Register for Free
  • Slate Reimagined: The Surprising Advantages of Slate Rainscreen Cladding

    Webinar

    Register Now
  • The State of Residential Design Today: Innovations and Insights from RADA-Winning Architects

    Webinar

    Register for Free
All Events