Big Little Rock

Project Details

Project Name
Big Little Rock
Location
Iceland
Architect
Minarc
Project Types
Shared By
dmadsen
Project Status
Built
Size
1,000 ft²

Project Description

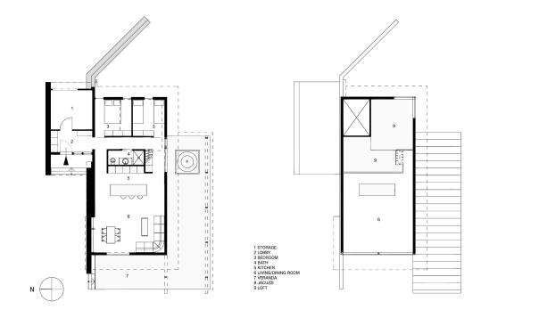
Big Little Rock is a modest house made to blend into the beautiful Icelandic nature – designed for an easy lifestyle. Vacation home or all year round.

Its simple eco-conscious design focuses on functionality and creates a healthy living environment for the family. The home integrates with the landscape and blends with the environment’s “body”. A conscious effort was made to use materials in their most organic form. It embraces history with forms found in traditional mud houses and the sod roof and walls form the solid building.

The project reduces its impact on the natural ground by using natural materials in their most organic form. Concrete, wood, and glass unify to create the building. Large and expansive windows and openings are used in the living area to provide abundant natural light, and frame the beautiful landscape and enable a seamless connection with nature. Sustainable practice like using recycled materials such as rubber tires, are used on the kitchen wall.

The home is open and glass is used to make the nature fill into the house. The summers are filled with endless sun while the winters glow with the Northern Lights and the snow is so bright it lights up the endless darkness.

Upcoming Events

  • Design Smarter: Leveraging GIS, BIM, and Open Data for Better Site Selection & Collaboration

    Live Webinar

    Register for Free
  • Slate Reimagined: The Surprising Advantages of Slate Rainscreen Cladding

    Webinar

    Register Now
  • The State of Residential Design Today: Innovations and Insights from RADA-Winning Architects

    Webinar

    Register for Free
All Events