Bibliothèque du Boisé

Project Details

Project Name
Bibliothèque du Boisé
Architect
Lemay
Project Types
Institutional
Project Scope
New Construction
Shared By
angcook21
Project Status
Built
Year Completed
2015
Certifications & Designations
LEED Platinum
Team
Architect, Project Manager : Claude Jean
Architect, Partner in Charge : Jean Marcil
Architect, Lead Designer : Eric Pelletier
Architect: Pierre Labonté
Architect: Amélie Turgeon
Architect: Annie Martineau
Landscape architect: Bao Nguyen
Architect: Denis Clermont

Project Description

FROM THE ARCHITECTS:

The Bibliothèque du Boisé, designed by the consortium Eric Pelletier, Cardinal Hardy – two firms that joined Lemay in 2013 and 2014 respectively – and Labonté Marcil architects, has won the Grand Prix of Excellence of the Ordre des architectes du Québec (OAQ) 2015.

Rewarding the Bibliothèque du Boisé appeared to be obvious for all members of the jury: "This is a very successful project that includes indoor and outdoor public spaces. Far for being a simple assemblage, every space and every square meter is beautiful, from volume to perspectives, from ceiling details to materials and furniture. Tremendous work has been performed to translate this excellence inside out. The building is uniquely built into the site it takes to grips with the landscape. His sculptural silhouette is elegant, thanks to its wave wood. "

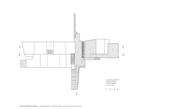
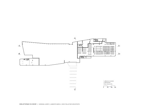
The Bibliothèque du Boisé aims to become a place fostering a feeling of belonging, promoting exploration and discovery. Located between Thimens Boulevard and the Marcel-Laurin Park, it covers a surface area of 5,000 m² and is integrated into the site by drawing on its major elements. This isn’t a project about architecture alone: it’s also about landscape. As such, this certified LEED Platinum building connects the city with the surrounding landscape, and serves as a point of connection that allows users to explore its site—inside and outside, from Boulevard Thimens as well as from the park. Visitors will discover the building by approaching it from a variety of spaces both intimate and dramatic, spaces that, by offering a variety of access pathways, set the stage for the site as well as for its users

In this project, architecture is landscape and landscape is architecture. The architecture changes shape, unfolds, spreads out and rises up, reducing the boundaries between the built space and the site. There are several means of access to the building – all of which encourage interaction and discovery. Therefore, the library is not an architectural gesture, but rather an act of communication and exchange. It gives to the collectivity the opportunity to get together and know each other.  

 Far from a monumental approach, the library is integrated into a natural and urban context, it adds richness to the site, helps to define the space and offers a simple and universal reading. True reflection of the human condition, of the fate of a changing landscape, of its architecture, the Bibliothèque du Boisé created a significant identity hub as well as a rich, dynamic and open space where boundaries are redefined to foster discovery, learning, and a sense of belonging for the entire community.  

Upcoming Events

  • Design Smarter: Leveraging GIS, BIM, and Open Data for Better Site Selection & Collaboration

    Live Webinar

    Register for Free
  • Slate Reimagined: The Surprising Advantages of Slate Rainscreen Cladding

    Webinar

    Register Now
  • The State of Residential Design Today: Innovations and Insights from RADA-Winning Architects

    Webinar

    Register for Free
All Events