Bento Box

Project Details

Project Name
Bento Box
Location
VenturaCA
Project Types
Outbuilding
Project Status
Built
Year Completed
2016
Size
320 ft²

Project Description

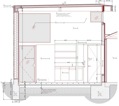
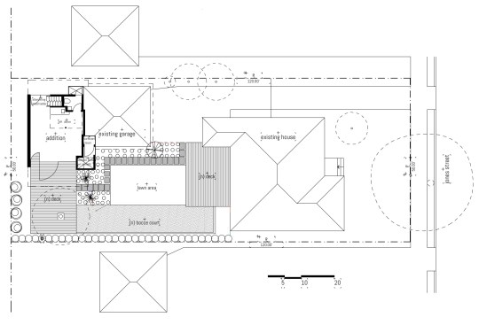
This project responded to the needs of a work-from-home designer whose growing business was straining the seams of his 1940’s bungalow but who was reluctant to trade the relaxed vibe and convenience of his midtown neighborhood for a commercial office. We took advantage of both unused space at the back of his extra-long lot and zero-growth zoning that supports in-fill to design an on-site studio loft that is creatively inspiring, socially and environmentally sensitive, and highly configurable. Inspired by the minimalist Japanese lunchboxes that only reveal their nature when opened, we used a simple geometry to maximize both volume and utility. The space is connected visually and physically to the outdoor deck and yard via a large glass pivot door, and can be easily re-arranged for working, reading, sleeping, and entertaining. It is also connected, in the spirit of wabi sabi, to the local tradespeople who forged steel-framed windows, built wooden cabinetry (with sake box joinery), poured concrete floors, and applied paint-free plaster finishes by hand, balancing precision with a touched-by-man feel. To minimize impact on neighbors, we placed the studio well back on the lot and behind the existing garage (with which it shares a wall), making it nearly invisible from the street, and kept mature trees intact to minimize visibility from adjacent yards. To lessen environmental impact, we leveraged existing utilities, installed radiant-floor heating, super-insulated walls, used laminated glass, and designed windows and roof overhangs for passive cooling and control of solar exposure, respectively. Project images document the nearly 3-year long process from initial hand sketches of the site plan and sections to physical models and finally framing, construction and completion.

Upcoming Events

  • Design Smarter: Leveraging GIS, BIM, and Open Data for Better Site Selection & Collaboration

    Live Webinar

    Register for Free
  • Slate Reimagined: The Surprising Advantages of Slate Rainscreen Cladding

    Webinar

    Register Now
  • The State of Residential Design Today: Innovations and Insights from RADA-Winning Architects

    Webinar

    Register for Free
All Events