BeFunky – Portland Office

Project Details

Project Name
BeFunky – Portland Office
Location
PortlandORUSA
Project Types
Shared By
Cornell Anderson
Project Status
Built
Year Completed
2015
Style
Modern
Size
3,000 ft²
Team
Architect, Interior Designer, Furniture Designer/Fabricator: FIELDWORK Design & Architecture

Project Description

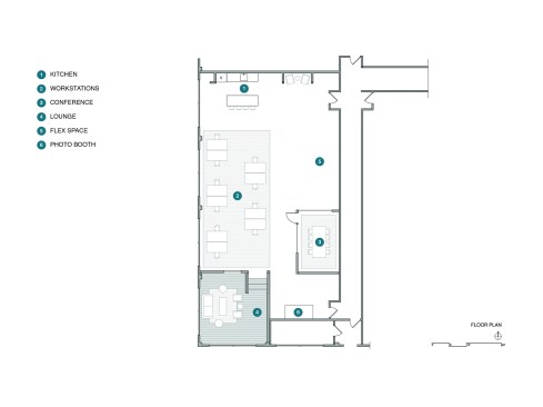
BeFunky, located in an industrial bow truss warehouse in NE Portland, is a photo editing app developer. The tenant improvement project scope includes 3,000 square feet of open office, conference room, whiskey lounge, and a kitchen/meeting area.

The client wanted a project that reflected their brand by creating an inspiring, timeless environment for their employees. The design concept is based on the BeFunky logo, a camera aperture, and is deconstructed to create the wooden screen elements at conference and lounge walls. The aperture screen, also used as a ceiling structure, connects the two primary structures within the space. Within the context of the exposed structure and concrete floors of the core and shell, the palette of character grade white oak provides a lush, warm backdrop that bodly invites one into the space. The white oak is used throughout the space, and treated with a dark stain within the lounge and kitchen areas. Inspired by the client’s love of mid-century furniture, the white oak is also used to create the custom workstations and conference table designed and fabricated by the FIELDWORK team at their Portland Studio.

Upcoming Events

  • Design Smarter: Leveraging GIS, BIM, and Open Data for Better Site Selection & Collaboration

    Live Webinar

    Register for Free
  • Slate Reimagined: The Surprising Advantages of Slate Rainscreen Cladding

    Webinar

    Register Now
  • The State of Residential Design Today: Innovations and Insights from RADA-Winning Architects

    Webinar

    Register for Free
All Events