Beautiful Chaos Modern French Country Renovation

Project Details

Project Name
Beautiful Chaos Modern French Country Renovation
Project Types
Single Family
Project Status
Built
Year Completed
2018
Size
3,000 ft²

Project Description

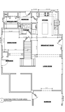
When this family came to us, they were at a crossroads. They had built their current home 16 years ago when their children were babies. Before they met us, they were deciding whether to build a brand-new home with a more conducive floor plan to meet the needs of their "big" kids, or completely renovate their current home. They wanted the second option, as it was next to the kids’ grandparents, and they cherished all their memories they had created there. However, they found the aesthetics to be out of date and wanted change. Additionally, the basement was not finished and there were several kinks in the main and second level floor plans. They had several contractors give their opinions on whether or not to renovate, as well as give them ideas on what to accomplish. But they were not happy with their advice and became discouraged with the process. Luckily, they found us, and called with one last hope that they could renovate. Our lead designer walked through the home and immediately saw potential for not only a beautiful facelift, but also creative ways to solve layout issues. She sketched up ideas, and we sent in our architect who put it precisely in renderings. Our company proceeded to develop a design and project plan with adherence to the client’s budget. We wanted to touch each level but also be creative with how we could stretch the budget. Our lead designer took full reign in all designs and selections as the homeowners had full confidence that her choices would reflect their style. Our designer took note that the clients favored the country-living look, but it was important that it was finished with a modern twist. We completely transformed what was once a bare-bones, unfinished basement to become a floor equipped with a game room, wet bar, media room and bathroom — also known as the man cave. The main level was a bit more complicated. Momma client disliked the location of the powder room and lack of a walk-in pantry. She did not like the half walls, soffits, columns and closets that broke up every room. She wanted a beautiful, gourmet kitchen and a large dining room. In terms of layout, we first moved the powder room out of visual sight of the front entry to the back, next to the mudroom. We then took that space to create a walk-in pantry. We also widened cased openings and suggested moving the dining room from a small room in the front of the house to the unused four-seasons porch. On the second level, we moved the laundry room from the master closet to the unused loft space near the kids’ bedrooms. We took the original hardwood flooring from the kitchen and installed it back into the master bathroom, after painting and distressing it to give it country character. During this renovation, our lead designer drove a U-HAUL across the country in search of salvaged building materials, architectural pieces and furnishings/décor to be incorporated into the project. Several of these pieces were installed in this home and now give it its modern, country flair.

Upcoming Events

  • Design Smarter: Leveraging GIS, BIM, and Open Data for Better Site Selection & Collaboration

    Live Webinar

    Register for Free
  • Slate Reimagined: The Surprising Advantages of Slate Rainscreen Cladding

    Webinar

    Register Now
  • The State of Residential Design Today: Innovations and Insights from RADA-Winning Architects

    Webinar

    Register for Free
All Events