Bayamon Infill Housing

Project Details

Project Name
Bayamon Infill Housing
Project Types
Project Scope
New Construction
Shared By
Miabelle Salzano
Project Status
On the Boards/In Progress
Year Completed
2019
Size
21,034 ft²
Team
design architect in charge: Victor Diaz Paunetto, AIA

Project Description

FROM THE ARCHITECTS:

The aftermath of Hurricane Maria has forced Puerto Rico to rethink its housing reconstruction efforts. While we concentrate on rebuilding single family homes affected, mostly located in prawned risk areas, there are many opportunities to provide for safe housing and simultaneously attend to other problems that have long affected the island before the passage of Maria. Opportunities we should take advantage of if we are committed to rebuilding a more resilient society and make good use of disaster funding.

This is the case of the Municipality of Bayamon, who has combined efforts to provide safe-housing for the Hurricane Maria’s victims with an ongoing strategy to repopulate its old urban district, launching an initiative to develop multiple abandoned infill lots for housing projects and mixed use developments. Given its proximity to mass transportation, street retail stores, restaurants, major sports venues, shopping centers, theaters, schools, churches, as well as public service buildings including courthouses, the initiative presented great opportunities for an intricate web of relationships at an urban scale for a truly sustainable and resilient development.

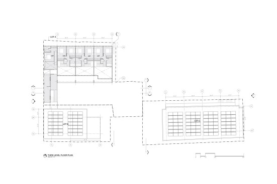
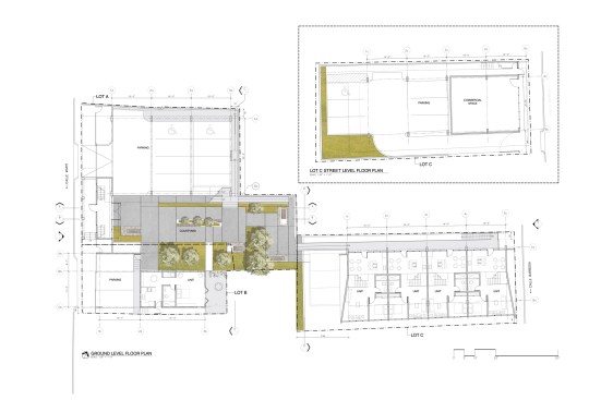
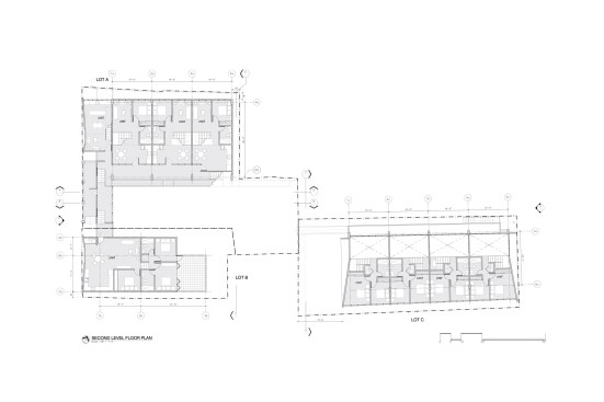
In our case we were commissioned to develop 3 different lots that were to be able to work independently or as a whole project. The respect and preservation of certain existing historical elements along with the limited size and irregularity of the lots presented many other challenges.

Using metaphorically the urban plaza as a defining element around which Bayamon’s urban district was originally erected, a large inner courtyard was proposed for the project around which all buildings revolve. This was accomplished by partially demolishing an existing building while preserving its historical façade, through which the main entrance to the project is located, while allowing Lot A building development to work independently from B & C.

Besides using concrete and metals, the implementation of recycled wood from shipping pallets became one of the primary materials used in an effort to reduce cost and help further the collective awareness for environmental responsibility. With treatment the recycled wood, accessible for free, can be used for construction in numerous ways as we have proposed for this project in the form of sunscreens, panels, doors and benches. In the process we help improve comfort levels inside the units reducing heat transfer and utility costs as well as long term replacement costs. And most importantly we also help promote a possible and sustainable future, raising public awareness for the imperative need of recycling in our society.

Passive conservation technologies have also been implemented. At the building scale a layer of solar PV panels helps provide most of the energy consumed while also protecting the building from heat transfer at roof level. Rain water is harvested for orchard irrigation at courtyard gardens, as well as for maintenance and cleaning purposes. While permeable surfaces at courtyard level help reduce storm water runoff, among others.

Upcoming Events

  • Design Smarter: Leveraging GIS, BIM, and Open Data for Better Site Selection & Collaboration

    Live Webinar

    Register for Free
  • Slate Reimagined: The Surprising Advantages of Slate Rainscreen Cladding

    Webinar

    Register Now
  • The State of Residential Design Today: Innovations and Insights from RADA-Winning Architects

    Webinar

    Register for Free
All Events