Bay State Cohousing

Project Details

Project Name
Bay State Cohousing
Location
MaldenMA
Architect
French 2D
Project Types
Project Scope
New Construction
Shared By
Andrea Timpano
Project Status
Built
Year Completed
2023
Size
48,700 ft²

Project Description

This article first appeared in the May/June 2023 issue of ARCHITECT.

Ten years ago, a group of nearly 30 households, comprising millennials, baby boomers, and ages in between, banded together with the goal of funding and creating co-housing for themselves in the Boston area. Now, their dream, Bay State Cohousing, has come to fruition.

When the group selected French 2D, a local architecture studio, to help bring their vision to life in 2016, principals Jenny French and Anda French, aia, relished the challenge. Though the sisters keep an eye toward collectivity and novel housing solutions in their work, they don’t specialize in co-housing. Yet this self-described “naïveté” gave them an edge; rather than lean on previous ideas about what co-housing should be, they could create a new—and custom—model for the clients.

Before French 2D started designing, the firm hosted workshops for the group to drill down on the wants and needs of the collective. “On any given day, there’d be 30, 40, 50 people in a room [with] all of their different perspectives, all playing different roles—the mediator, the question-taker—keeping each other in check,” Jenny says. Clients identified the features they knew they wanted, such as proximity to a train station, while using game-like exercises including rearranging images of home features—large and small closets, double vanity sinks, built-in shelving—to decide what was necessary in each unit. The group also laid out a charter to organize the residents’ core beliefs about co-living, as well as formalize their expected participation in self-governance and events such as movie clubs and game nights.

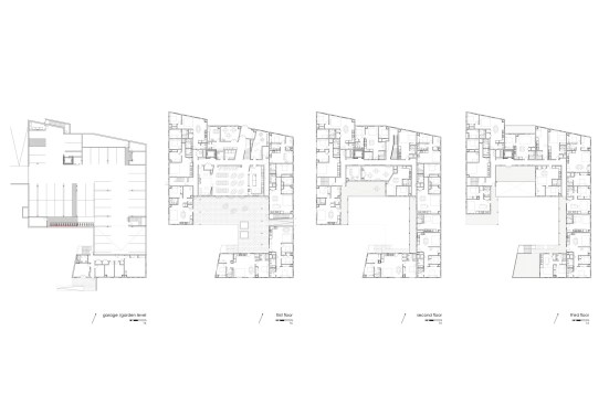
The culmination of their thoughtful workshops is Malden Center’s Bay State Cohousing. The Frenches trace their inspiration for the 48,700-square-foot structure to the colorful, rambling Victorians lining nearby streets in Malden. The complex mimics an enlarged single-family home with a bright, cheerful color palette; outside, soft pastels such as light pink and sea-foam green lead into an interior punched up with brighter accent colors, including sunny yellow and Kelly green. “[It’s a] playfulness, I think, that matches the community,” Anda says. “They didn’t want something that was too serious because it would not be the right backdrop to the kind of community that they want to create.”

The building’s 30 units range from studios to three-bedrooms, and the ownership model is similar to that of a condominium complex. The difference, of course, is the emphasis on collective space. The dining room—connected to the shared living area, the central outdoor patio, and the common kitchen, which residents can use for cooking weekly group meals—anchors the building as one of the largest common areas. With 100 seats, it could just as easily host a combined Thanksgiving dinner as it could offer a casual workspace for remote workers. The room’s bright yellow banquette serves as a transitional tool—it can seat many or be used by smaller groups for more intimate conversations. “When there aren’t 100 people in there, and you’re in there working, drinking coffee, or hanging out with kids, how do you not feel like you’re in a cafeteria or a space that’s just out-scaled for you?” Jenny says of the colorful design detail.

Elsewhere in the building, common spaces include a craft workshop, a yoga room, a music studio, a pantry, and more. Each household brought furnishings and art from their previous homes to contribute to both their own units and the shared areas. The result is what the Frenches call “an aggregate of their personal histories.” The collectivity theme continues outside, where residents wanted as many communal lounge areas as possible. None of the building’s four balconies are private to any unit, and the patio, gardens, and dog run are open to all community members.

So far, the project has offered a promising model of collaboration in both design and co-living. “We designed the project with the clients through consensus decision-making,” Anda says. “At every step of the design process, we aligned it with the values of the community.”


This project was selected as a citation winner in the 67th Annual Progressive Architecture Awards, and was featured in the March 2020 issue of ARCHITECT.

“The way they are presenting this suggests they are thinking of it as a very large single-family house that involves 30 mini, family parts—and I like the representational style, too.” —juror Ann Lui

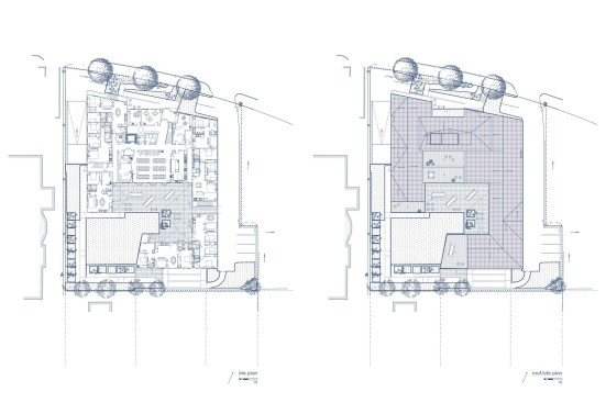
As American cities struggle to provide adequate affordable housing, Boston firm French 2D has hit on a model for high-density, high-quality, highly customized residential construction that slips seamlessly into a low-density neighborhood of detached single-family houses. Bay State Commons Cohousing is located in the quiet bedroom community of Malden, Mass.—exactly the type of environment where NIMBY sentiment can make multi-unit housing prohibitively difficult to build.

French 2D’s solution effectively cloaks the condominium building in an envelope with gabled roofs, a wood façade, and assorted vernacular touches that make it read less like a single structure than a gaggle of traditional, free-standing row houses, or even an eccentric Victorian mansion. This effect is actually a trick of the eye, achieved through subtle planar modulations and shifts in scale that speak to a very contemporary sensibility.

More importantly, the building’s true motivation is to carry out a decidedly urban program: The 100 occupants of the building’s 30 studio to three-bedroom units all rely on shared amenities—a communal dining room, recreation spaces, kitchen, even rooms for art classes. This cohousing scheme was developed by the residents, who pooled resources to form the client entity. A participatory design process ensured each voice was heard and individual needs accounted for.

The architects have facilitated this arrangement with a plan that subtly modulates between the private and public spheres: stairways and exterior corridors connect apartments to one another and a central green space below, where a community garden doubles as a front yard for the lower-most apartments. The net result is a building as radical as the “social condensers” favored by 20th-century Russian Modernists, but adapted to the social realities and pressing needs of the American metropolis in the 21st century. —Ian Volner

PROJECT CREDITS
Project: Bay State Cohousing, Malden, Mass.
Client/Owner: Bay State Cohousing
Architect: French 2D, Boston. Jenny French (partner); Anda French, AIA (partner)
Architect of Record: Linda Neshamkin, AIA
Interior Designer: French 2D
Structural Engineer: TF Moran, Inc.
Mechanical Engineer: Norian/Siani Engineering, Inc.
Electrical Engineer: Norian/Siani Engineering, Inc.
Plumbing Engineer: Norian/Siani Engineering, Inc.
Civil Engineer: H.W. Moore Associates, a division of Hancock Associates
Geotechnical Engineer: McPhail Associates
General Contractor: Landmark Structures Corporation
Landscape Architect: CBA Landscape Architects
Lighting Designer: French 2D
Development Consultant: Urban Cohousing, Inc.
Specifications: Putnam Associates
Acoustical Consultant: Cavanaugh Tocci Associates
Energy Consultant: CLEAResult
Code Consultant: C3

MATERIALS AND SOURCES
Common Dining Ceiling – Linyfelt by Fräsch! in custom pattern by French 2D
Adhesives, Coatings and Sealants: Henry
Appliances: General Electric
Bathroom Fixtures: Sterling by Kohler
Carpet: Mohawk Group
Cabinets: Advanta
Siding: James Hardie Artisan Collection
Bathroom floors, walls, kitchen backsplashes: Daltile Tile
Custom millwork seating in Koskisen, Koskidecor Eco Transparent Decorative Plywood
Flooring: Fuse Flooring Flyt Collection; Armstrong Bio Flooring
Gypsum: USG
HVAC: Samsung VRF
Insulation: Owens Corning Thermafiber Ultrabatt
Kitchen fixtures: Kohler; Elkay
Lighting Control Systems: Intelligent Lighting Controls
Lighting: Halo by Cooper Lighting; WAC Lighting; Dutton Brown; Barn Light Electric Co.
Paints and Finishes: Benjamin Moore
Site and Landscape Products: Hanover Pavers
ZinCo green roof system over underground garage at courtyard
Structural System: Wood framed over reinforced concrete foundation
Windows and Doors: Intus Windows; Marvin

FROM THE ARCHITECTS:

Boston-based architecture studio French 2D will break ground on Bay State Commons Cohousing, a typology-challenging 45,000-square-foot multifamily structure for a group of thirty households, on Thursday February 13th at 10 AM. Situated at 368 Pleasant Street in Greater Boston’s city of Malden, the innovative 30-unit cohousing community is the first of its type under Malden’s newly created Cohousing Zoning Ordinance, the result of two years of incredible community work and support. A ceremony attended by the Mayor of Malden, City Councilors, future residents, contractors, and the design team will inaugurate the ground-breaking process.

French 2D’s innovative design for Bay State Commons Cohousing collapses a collective building of 30 dwellings for 100 inhabitants so that it simultaneously reads as a single house and a happy hamlet. Following the cohousing ethos, each of the 30 units provide the amenities of a private home, while also creating a community around shared spaces and resources. The urban site for this community takes principles of smaller living at all unit sizes—micro-studio through three-bedroom—to free up space and resources for the benefit of the larger group. Formal slices throughout the site and building provide accessible routes and common spaces through layers of interior and exterior spaces. “We are excited to be part of new housing and development models, imported from places like Denmark, and the Baugruppen movement in Germany, that address the formation of non-traditional households, social isolation, and aging here in Boston,” says co-principal Jenny French.

To frame the project, French 2D built a participatory design model based in their belief that future residents have the capacity—and should have the agency—to make major decisions about the design of their environment. The design process was collaborative at every phase and scale, including workshops, consensus building, and familiarizing the group with design decisions. Ultimately, the design addresses a myriad of the residents’ concerns—from site access, environmental concerns, neighborhood perception, to the daily lives, chance meetings, and social vibrancy of its future residents.

“Amidst a Greater Boston housing crisis, fueled in part by mismatched supply and demand for housing types, this project represents the best of owner-developed, inclusive community building,” says co-principal Anda French.

Upcoming Events

  • Design Smarter: Leveraging GIS, BIM, and Open Data for Better Site Selection & Collaboration

    Live Webinar

    Register for Free
  • Slate Reimagined: The Surprising Advantages of Slate Rainscreen Cladding

    Webinar

    Register Now
  • The State of Residential Design Today: Innovations and Insights from RADA-Winning Architects

    Webinar

    Register for Free
All Events