Barrio Historico House

Project Details

Project Name
Barrio Historico House
Architect
HK Associates
Project Types
Custom
Project Scope
New Construction
Shared By
mkrochmal
Project Status
Built
Year Completed
2013
Style
Modern
Size
2,100 ft²

Project Description

Custom / 3,000 Square Feet or Less / Grand
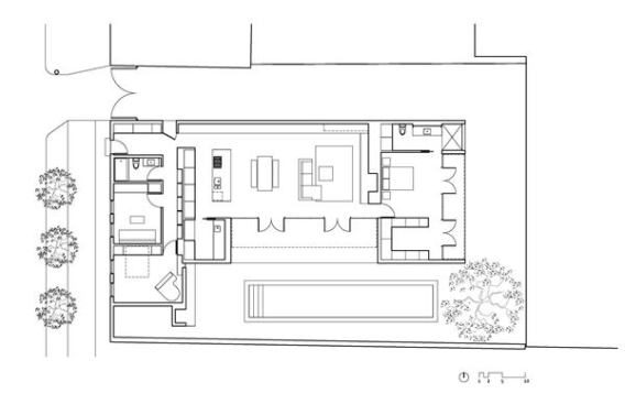
This modern interpretation of a traditional house in Tucson, Ariz., captivated the judges. Its modest proportions, all-white exterior, and courtyard plan evoke the vernacular buildings of its tightly woven neighborhood, Tucson’s Barrio Historico. But by refining each design element to its most minimal state, architect HK Associates created a singular dwelling. “I loved the adaptation of vernacular motifs and the reduction of those motifs to what is essential,” said a judge. “It doesn’t hew to the standard kit of parts.”

Principals Kathy Hancox and Michael Kothke wanted to make a house that would engage with the desert’s ever-changing sky. “We tried to do things that would create an atmosphere,” Kothke says. Adds Hancox: “The white is kind of like a canvas for the sky.” The courtyard’s lap pool shimmers in the sun, reflecting off a back-painted glass soffit. A corner skylight in the living room balances out the light coming from the courtyard without compromising privacy. And a low-tech periscope window above the kitchen cabinets brings in distant mountain views. These seemingly small moves create a constantly shifting interplay of light and shadow.

Solar orientation, strategic shading, and rooftop photovoltaic panels keep the owners’ energy bills low. Insulating concrete forms (ICFs) ensure quiet interiors, despite the home’s location on a fairly busy street. The soft gleam of poured concrete floors complements white interior walls and rift-sawn white oak built-ins. “This house really, truly seems to incorporate light as a material,” one judge said. —Meghan Drueding

Upcoming Events

  • Design Smarter: Leveraging GIS, BIM, and Open Data for Better Site Selection & Collaboration

    Live Webinar

    Register for Free
  • Slate Reimagined: The Surprising Advantages of Slate Rainscreen Cladding

    Webinar

    Register Now
  • The State of Residential Design Today: Innovations and Insights from RADA-Winning Architects

    Webinar

    Register for Free
All Events