Barrier Island House

Project Details

Project Name
Barrier Island House
Location
Vero BeachFL
Project Types
Shared By
dmadsen
Project Status
Built
Size
2,676 ft²

Project Description

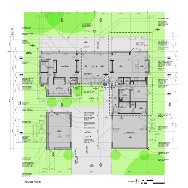
This project is located within a waterfront neighborhood of modest 1950’s era houses alongside many more recent supersized replacements. Our process began by evaluating the client’s goals with their existing property in order to determine whether or not the existing single family residence on the site could accommodate their needs. After an early visit to the site it was determined that any improvement to the existing residence would require the demolition of the original terrazzo slab on grade, perhaps the property’s best asset.

Once the decision to replace the existing structure was made a series of design options were explored which maintained the scale and character of the original house while accommodating new programmatic goals including a loft level, a detached workshop, and an abundance of outdoor space. A desire to preserve as much of the natural vegetation on the site as possible including many beautiful live oak trees meant containing new construction within the footprint of the original building. Improved efficiency within the layout allowed us to provide the same interior program within a smaller amount of conditioned space, again a nod to the scale and character of the original historic neighborhood. Hurricane codes dictated our structural system which consisted of concrete with CMU infill. As with most projects within this context, stucco clads the primary volume of the house. Dark brick and cedar are used as secondary materials cladding accessory volumes and surfaces while an abundance of glass lends transparency to the primary public spaces while offering uninterrupted views to the waterway beyond.

Upcoming Events

  • Design Smarter: Leveraging GIS, BIM, and Open Data for Better Site Selection & Collaboration

    Live Webinar

    Register for Free
  • Slate Reimagined: The Surprising Advantages of Slate Rainscreen Cladding

    Webinar

    Register Now
  • The State of Residential Design Today: Innovations and Insights from RADA-Winning Architects

    Webinar

    Register for Free
All Events