Barcode Residence

Project Details

Project Name
Barcode Residence
Location
WashingtonDC
Project Types
Single Family
Project Status
Built
Year Completed
2011
Size
2,450 ft²

Project Description

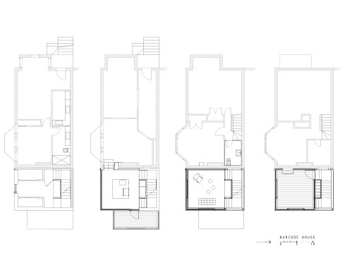
Barcode House explores juxtapositions between the heavy and light and the old and the new. The work is formed by positioning the project’s diverse pressures into a unique situational aesthetic. Brittle masonry walls of the existing Washington, DC row house governed that the addition be engineered as a freestanding structure. Site constraints dictated a vertically oriented spatial solution. The client’s desire for transparent living space generated the opportunity to create an integrated solution for lateral force requirements. Structural steel rods within a glass window wall are aligned with datum lines of the neighboring building elevations. A stucco circulation tower anchors the living space to the existing row house.

Upcoming Events

  • Design Smarter: Leveraging GIS, BIM, and Open Data for Better Site Selection & Collaboration

    Live Webinar

    Register for Free
  • Slate Reimagined: The Surprising Advantages of Slate Rainscreen Cladding

    Webinar

    Register Now
  • The State of Residential Design Today: Innovations and Insights from RADA-Winning Architects

    Webinar

    Register for Free
All Events