Baptist Church Annex

Project Details

Project Name
Baptist Church Annex
Location
Glen EchoMD
Project Types
Single Family
Project Scope
Adaptive Reuse
Project Status
Built
Team

Project Description

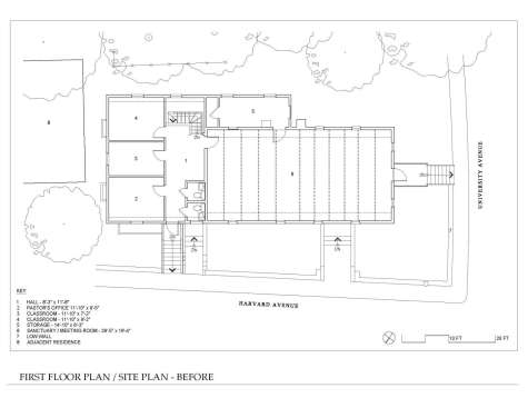
Broadhurst Architects worked with contractor McFarland Woods
to transform this 110-year-old church into a family home for the property’s new
owners. The building, known as The Baptist Church Annex in the community, was
once used for worship functions, but had since fallen into disrepair. Since current
zoning laws prohibited building a new structure of the same size in its place–a
new building could only be half the size of the original—the team opted to
renovate the existing structure, which was also a popular historic feature in
the small town.

In order to make the space livable, major renovations
were needed. The wood frame was repaired and restored, structural insulated
panels were installed over new trusses to simulate the originals, and new
windows, doors, and exterior siding were added. 

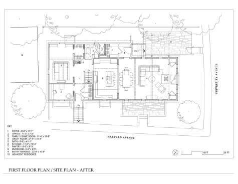
Dramatic changes also were made
to both the upper and lower-level floor plans. On the first floor, the church
hall, sanctuary, classroom, and offices were restructured to become an entry
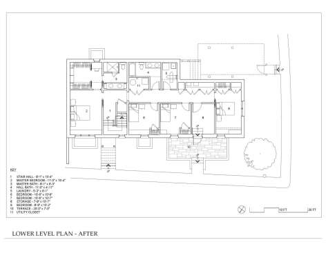
foyer, home office, kitchen, dining area, and family room. The lower level was
transformed from Sunday school classrooms and a kitchen with low ceilings to an
open, airy living space with plenty of natural light, four bedrooms, and a
laundry room. The finished project resulted in a beautiful modern space the
owner can call home, with a nod to the building’s traditional roots.

See the video about the redesign and more winners of the 2015 Remodeling Design Awards.

Upcoming Events

  • Design Smarter: Leveraging GIS, BIM, and Open Data for Better Site Selection & Collaboration

    Live Webinar

    Register for Free
  • Slate Reimagined: The Surprising Advantages of Slate Rainscreen Cladding

    Webinar

    Register Now
  • The State of Residential Design Today: Innovations and Insights from RADA-Winning Architects

    Webinar

    Register for Free
All Events