Bank Sankt Petersburg at the „St. Petersburg Plaza“ complex

Project Details

Project Name
Bank Sankt Petersburg at the „St. Petersburg Plaza“ complex
Project Types
Commercial
Shared By
Esenija Bannan
Project Status
Built

Project Description

Bank Sankt Petersburg at the „St. Petersburg Plaza“ complex
New administrative headquarters of financial group Bank St. Petersburg
Malookhtinsky pr. 64 lit. A, Krasnogvardeisky administrative district, 195112 Saint Petersburg, Russia
Client: OOO Stroitelnaya Kompaniya Sankt-Peterburg
Total area: approx. 40.000 m²
Completion: 08/2011
Planning collaboration: Evgeny Gerasimov, Evgeny Gerasimov & partners, St. Petersburg (Full construction project design services); Sergei Tchoban, nps tchoban voss Berlin (Building construction, interior lobbies); SPEECH Tchoban & Kuznetsov Moscow (Interior offices)
Project manager: Oleg Kaverin (EGP), Paul Olufs, Valeria Kashirina (nps tchoban voss), Kazul Vyacheslav (SPEECH)
Team (nps tchoban voss): Evgeny Pfeil, Christoph Heimermann, Natalia Mantler, Pavel Zemskov, Igor Markov, Silvia Grischkat
Structural engineering: EGP- Evgeny Gerasimov & partners
Building equipment: KlimatProf
Full construction project design services: EGP- Evgeny Gerasimov & partners Architekten, St. Petersburg
Façade: IB Priedemann, Berlin

Mutual Basis
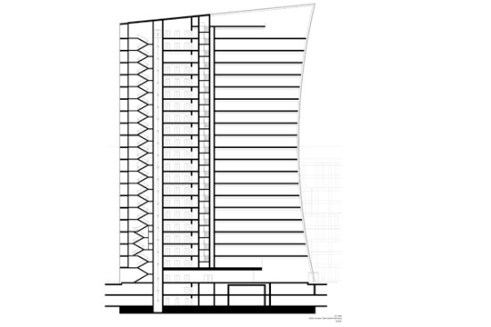
Located on the banks of the River Neva near the confluence with the River Okhta, the future administrative headquarters of financial group Bank Saint Petersburg develops within St. Petersburg‘s new Okhta complex. While a group of typical new blocks on the Neva banks are tying in with the existing buildings in the north and south, the new front opens in the main axis of the complex and gives view to a 22-storey high-rise. It represents the central element of the complex and is flanked by two 9-storey buildings on one common basis unifying the different volumes and offering ample parking space for the new quarter on two basement levels. Running accross the embankment a pedestrian bridge will eventually put particular emphasis on the new axis between the river and the tower. A jetty for tourist boats with a viewing platform and a restaurant entering the water finally connects the administration building with the main artery of the city. The planning is conducted in collaboration with EGP Evgeny Gerasimov and Partners, St. Petersburg.
The façades of the ground floor areas, clad with natural stone, have been selected to offer visitors and passers-by familiar surroundings and create a feeling of soundness and high quality. The side wings have been equipped each with their own design putting particular emphasis on vertical and horizontal elements in various ways. The northern building has been made up of three equal volumes showing convex curved floor plans soft-edge corners and performing demonstratively, while the southern wing is made of glass and matte and glossy dark stone surfaces describing a cube with classical architectural structure. The tower contrasts them by its height and its special silhouette. On the riverside its glass façade bends inwardly along the entire height. The resulting waistline adds subtle dynamics to the building making it appear elegant from almost every direction from across the river. In the future a pedestrian bridge across the embankment and onto the river marks the main axis perpendicular to the river bank. In its extension a boat dock with viewing platform and restaurant enters the water and thus connects the set-back administrative complex with the River Neva.
The design of the individual inner lobbies and public areas has been adapted to the individual characteristics of the three building types, i.e. the two wings and the tower. Only the granite paved floor of the plaza between the Bank buildings runs into the main lobbies and ensures a particular continuity between outside and inside. Especially the two-story lobby of the tower has been provided with full interior glazing creating a stunning reception for all users and visitors. It shows large-size panels featuring fragments of historical bank buildings of St. Petersburg as a illusionist collage. Bank St. Petersburg is hence being presented as a self-confident company always conscious of its local roots and at the same time utilizing the rich mercantile tradition of the Baltic metropolis of St. Petersburg and alluding to the St. Petersburg town planning history.

Upcoming Events

  • Design Smarter: Leveraging GIS, BIM, and Open Data for Better Site Selection & Collaboration

    Live Webinar

    Register for Free
  • Slate Reimagined: The Surprising Advantages of Slate Rainscreen Cladding

    Webinar

    Register Now
  • The State of Residential Design Today: Innovations and Insights from RADA-Winning Architects

    Webinar

    Register for Free
All Events