Balcones de cofico 3

Project Details

Project Name
Balcones de cofico 3
Location
BedoyaRodriguez PeñaCórdobaARARGENTINAX5000LUF
Architect
A+G [Arquitectos]
Project Types
Multifamily
Project Scope
New Construction
Shared By
Manuel Alazraki
Project Status
Built
Year Completed
2013
Style
Modern
Team
Designer: Arq. MAría Emilia Genaro
construction company: I&A (Ingenieria y Arquitectura)
Room or Space
Exteriors

Project Description

Alta córdoba is a neighborhood full re-densification …
The project is located in an empty large for the usual average neighborhood Alta Cordoba, product transfer of an old factory fresh pasta. Densification promoted by the municipality of the city from building code, at the time the project was conceived raised profiles limiting the heights and not the number of floors. Following batch size was due solve the coexistence of three different profiles, resulting in the definition of terraces, to the medians of both streets, different limits and product geometries of building height.

Alta córdoba is a neighborhood of corners …
The first neighborhood densification is formed during the nineteenth century Italianate houses materialized on building line without any retreat and where usually the corners played a leading role, marked by urban vacuum generated by the ochava both, as the hierarchy of income. The project rescues this logic of appropriation and try to move it to the current problems locating the entrance hall framed in an external vacuum double height and horizontal bands interspersed with a turn of 89th and 91st to resolve the tension of their meeting at the corners.

Alta córdoba is a living neighborhood streets …
Powered by large sidewalks and facades of frank opening towards the street, the industry enjoys a healthy neighborhood life. The project located in kitchens complete permeability outward, tries to feed the visual relationship between passersby and residents of the building without compromising privacy, openings advance and are transparent. In return the rest of the day and night spaces precede powerful horizontal bands after officiating sunscreen and empty house the air conditioning units that are part of the standard equipment of the units.

Alta córdoba is a neighborhood with high quality of life …
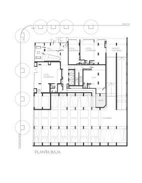
The building tries to take some of the patterns of home life and features equipment that bring private and community departments so that way of living. balconies and terraces of generous dimensions in all departments a multipurpose room in suitable ground for the development of small family events, sink and north-facing solarium, a spacious terrace with grills and garages with storage saving proposed for the 70% of the apartments, ground floor and a basement. This large parking percentage is obtained by a special structural effort, beams transition from one meter wide and high partly underground and part of the ground floor, allow re-modular structure adapted to two different typological requirements.

Upcoming Events

  • Build-to-Rent Conference

    JW Marriott Phoenix Desert Ridge

    Register Now
  • Reimagining Sense of Place: Materiality, Spatial Form, and Connections to Nature

    Webinar

    Register for Free
  • Homes that Last: How Architects Are Designing a Resilient Future

    Webinar

    Register Now
All Events