Arts & Letters Creative Co.

Project Details

Project Name
Arts & Letters Creative Co.
Location
RichmondVirginia
Architect
ARCHITECTUREFIRM
Project Types
Workspace
Project Scope
Adaptive Reuse
Project Status
Built
Year Completed
2021
Size
20,595 ft²

Project Description

This project was selected as a Honor winner in ARCHITECT’s 2024 Architecture & Interiors Awards, Architecture: Adaptive Reuse/Historic Restoration category.

“The restraint of the interventions allows for a welcome contrast between their individual geometric clarity and the rustic patina of the existing shell.” –Juror Ben Crawford

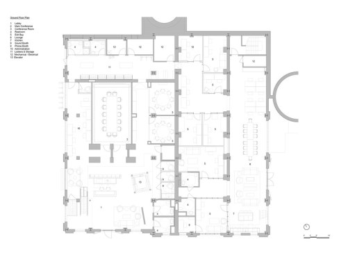
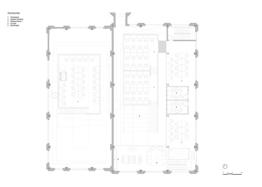
Situated in historic Shockoe Bottom, this project radically transforms the 1930’s Lucky Strike Tobacco power plant into a vibrant, day-lit headquarters for Arts & Letters Creative Co., a national branding and marketing agency based in Richmond. Arts & Letters has an open, collaborative working method and they do much of the design and production work in house, with creative, direction/production, writers, and video and graphics production taking place all under one roof. ARCHITECTUREFIRM’s approach respects the existing historic brick and tile building by removing all previous work and creating a clean pair of white program insertions to capture the additional working and making spaces for this dynamic company.

The building envelope, featuring expansive steel windows and skylights, allows for ample natural light. The new white program and functional elements establish a dialogue with the aged and layered character of the existing structure. The upper sections of the two main program blocks house open office areas and a spacious internal amphitheater space, while the lower sections offer quieter meeting and team space required by a 160-person team. The basement level is designated for darkrooms, photo and digital production, and projection/screening rooms, making the most of the building’s natural light arrangement.

PROJECT CREDITS:
Arts & Letters Creative Co.
Location: Richmond, VA
Client/Owner: Arts & Letters Creative Co.
Architect:
ARCHITECTUREFIRM
Danny MacNelly, AIA (Partner in Charge)
Adam Ruffin, AIA (Design Partner)
Matt Pinyan, AIA (Project Manager)
Haley Maquire (Project Designer)
Construction Start Date: June, 2019
Construction End Date: March, 2020
Interior Designer: ARCHITECTUREFIRM
Mechanical Engineer: AFK Group
Structural Engineer: Engineering Solutions
General Contractor: DPR Construction
Size in Square Feet: 20,400 SF
Cost: $3,822,800

Upcoming Events

  • Design Smarter: Leveraging GIS, BIM, and Open Data for Better Site Selection & Collaboration

    Live Webinar

    Register for Free
  • Slate Reimagined: The Surprising Advantages of Slate Rainscreen Cladding

    Webinar

    Register Now
  • The State of Residential Design Today: Innovations and Insights from RADA-Winning Architects

    Webinar

    Register for Free
All Events