ArtA

Project Details

Project Name
ArtA
Project Scope
New Construction
Shared By
dmadsen
Project Status
Concept Proposal

Project Description

FROM THE ARCHITECTS:

SO – IL, Architectuurstudio HH (AHH), and ABT have released their new design proposal for ArtA, a planned development along the Rhine River in the inner city of Arnhem, The Netherlands. ArtA will combine the Museum Arnhem and Focus Filmtheater Arnhem. The design was created after the team was shortlisted for the architecture competition in December 2013, along with Kengo Kuma and Associates, BIG | Bjarke Ingels Group, NL Architects, and Office for Metropolitan Architecture (OMA).
The SO – IL and AHH team’s design will serve as a link between the city and the Rhine, focusing on three main ideas: urban form, collective structure, and reflective space. A robust and identifiable public building for the city now and in the future, ArtA offers a multitude of interfaces for the city of Arnhem. Generous and flexible programmatic volumes support the production and experience of culture, as well as create a place for reflection and wonder – a transportive experience. The proposed building is energy-neutral, and may even be energy-yielding to immediate surroundings.
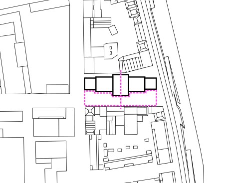
The surrounding city block layout of Arnhem informs the building’s shape. By introducing differences in the volumes and position of these building blocks, a clear organization and strong urban form emerges. The resulting volumes will allow ArtA to interface with the city in new and unprecedented ways. Surrounding streets morph into a city square and stimulate development. The abstract form gives the building a mysterious character, summoning the imagination.
The SO – IL and AHH design is as an open and flexible structure, a “loose coat” of sorts. A multitude of spatial nuances in daylight, height, proportion, allow the building to adapt to an ever-changing culture-scape making it a productive place for both experimental and established forms of visual art, cinema and design. These “micro-environments” within the building reach a new mode of flexibility offering ArtA an endless catalogue of possibilities. The atrium, for example, can easily adjust to house a space for video projections, an art class, a book fair, or a fashion show.
While the new ArtA building will be a platform for culture in the world, it will also offer a place to slow down and reflect. As a “cloud,” the building rests just above street level, full of surprises for the visitor to discover. A large staircase leads the visitor deep into the heart of this new three-dimensional world of light and shade, intimate and grand vistas. Stairs, balconies, openings, views offer a plurality of spatial experiences and relationships. Strategic openings give onto the city , the Rhine, and the landscape offering a whole new perspective for Arnhem.
The SO – IL and AHH team combines strong knowledge of the local conditions and experience with state-of-the-art public institutions around the world. With Dutch roots, New York-based SO – IL’s work focuses on culturally significant projects, including Kukje Art Gallery in Seoul, Frieze Art Fair in New York, and most recently, their winning proposal for the Shrem Museum of Art at the University of California at Davis. AHH is likewise known for outstanding public arts buildings, especially in the Netherlands, where the firm has recently completed the Performing Arts Center TivoliVredenburg in Utrecht and the Multipurpose Hall Markant in Uden. Other buildings include Filmhuis Den Haag, CODA Museum Apeldoorn, and Chassé Theatre | Cinema Breda. Through the team’s many projects in the cultural realm, they have a deep understanding of the global culture of contemporary art and an ability to respond to what is to come with innovative solutions.
Announced in October 2013, the project will bring together Museum Arnhem (MMKA) and Focus Filmtheater Arnhem (FFA) in a new cultural facility in Rijnboog (expected GFA 8,500 m2), the southern part of Arnhem’s inner city. ArtA will challenge visitors with a combination of visual arts, film and design, bringing the public and makers together in a space which provides scope for mind-broadening creativity, stimulating dialogue and critical reflection.

For a video that accompanied the release, please visit http://vimeo.com/solidobjectives/arta

Upcoming Events

  • Design Smarter: Leveraging GIS, BIM, and Open Data for Better Site Selection & Collaboration

    Live Webinar

    Register for Free
  • Slate Reimagined: The Surprising Advantages of Slate Rainscreen Cladding

    Webinar

    Register Now
  • The State of Residential Design Today: Innovations and Insights from RADA-Winning Architects

    Webinar

    Register for Free
All Events