Arroyo Oak House

Project Details

Project Name
Arroyo Oak House
Location
CastaicCA
Project Types
Single Family
Project Scope
New Construction
Shared By
Aaron Neubert
Project Status
Built
Style
Modern
Size
5,651 ft²
Team
Principal: Aaron Neubert
Project Manager: Jina Seo
Interior Designer: Sarah Stevenson
Technical Architect: Eric Nulman

Project Description

Weary from years of two-hour work commutes, the project owners engaged ANX to develop a new residence within a mile of their Southern California manufacturing company’s facility and offices. Interested in maintaining a similar connection to the land as their current residence, an undeveloped rugged sandstone terrain, bisected by a dry river and dotted with native yucca, oak, sagebrush, and beavertail cactus, was selected as the site for the new home.

In response to the challenge of creating spaces to view, measure, and engage with the diversity of the surrounding semi-arid landscape, the Arroyo Oak House is open and transparent, immersed in natural light, and visually integrated with the surrounding Sierra Pelona Mountains. Optimizing the connection to this unique topography, multiple interlocking program-specific pavilions are oriented across the site. The placement and overlap of these pavilions result in varying scales of gardens, terraces, and decks, encouraging landscape elements to literally and perceptually permeate the home’s interior.

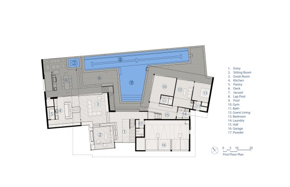
Upon approach, an elevated, horizontally-clad zinc volume is presented, both transparent to focus attention on the distant ridgelines, and semi-reflective to capture the impression of the clouds. Entering below the elevated mass and into the living level, primary apertures located on the perimeter and secondary fissures between the pavilions collage distinct mountain and sky views. Split-level interior spaces expand into exterior terraces, collapsing the domestic environment upon the rural landscape.

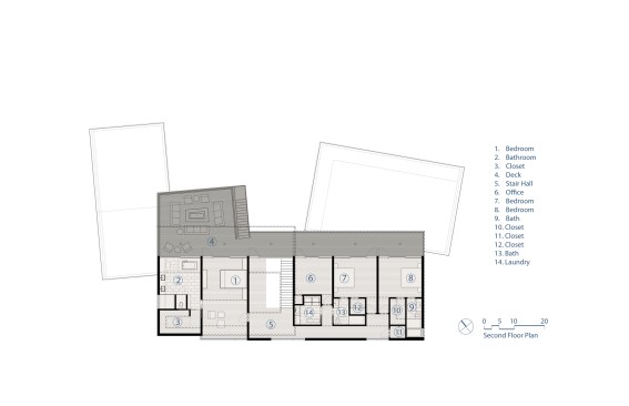
The lower level, containing a home gym, laundry room, guest suite, and pool terrace, extends into the hillside, providing an unobstructed panoramic vista. The continuous materiality of cedar and limestone accentuates the experiential relationship between inside and out. This connection to the outdoors continues on the upper level, which contains the primary bedroom, home office, two secondary bedrooms, linear balcony, and lounge deck.

The pool terrace and adjacent open-air living room unfold onto the meadow and ultimately the arroyo below, augmenting a natural, preexisting path for animals with a minimally delineated walking loop with which to explore the site. The sensitive nature of the fire-susceptible landscape, as well as the unique climate, solar, and seasonal conditions, called for careful positioning of the home, as well as consideration of plant specifications and irrigation requirements.

Upcoming Events

  • Design Smarter: Leveraging GIS, BIM, and Open Data for Better Site Selection & Collaboration

    Live Webinar

    Register for Free
  • Slate Reimagined: The Surprising Advantages of Slate Rainscreen Cladding

    Webinar

    Register Now
  • The State of Residential Design Today: Innovations and Insights from RADA-Winning Architects

    Webinar

    Register for Free
All Events