Around the Corner

Project Details

Project Name
Around the Corner
Location
Gwangjin-gu, SeoulSeoulSOUTH KOREA
Project Types
Multifamily
Project Scope
New Construction
Shared By
GOarchitecture
Project Status
Built
Year Completed
2023
Style
Other

Project Description

FROM THE ARCHITECTS:

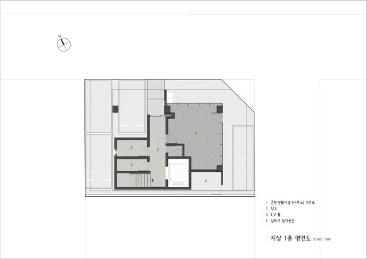
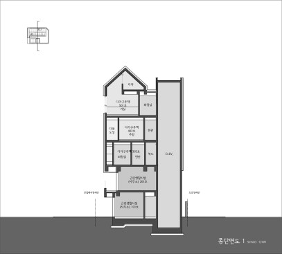
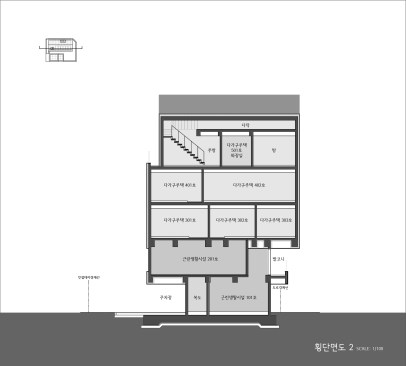
Around the Corner is located in an alley full of villas in Junggok-dong. The alley is full of villas on the 4th and 5th floors, and you can walk while looking at the automatic doors and parking lots of the villa’s entrance. It is located in the corner where such alleys meet. Like any multi-family or multi-family house, it was built at a legal maximum to increase the value of real estate, but I wanted to be able to talk to people walking along this alley. The front of the first floor is not full of parking lots and entrances, instead a small shop, some front space and a second-floor exterior balcony give passers-by the possibility of eye-catching or communicating. The family, who previously lived in a detached house with their parents, decided to build a multi-family house consisting of rental for their old age, parents’ generation, and building owners’ generation. The first and second floors consist of neighborhood living facilities, the third floor of rental housing, the fourth floor of parents, and the fifth and attic floors of a family of four. The lower floor is open toward the street, the middle floor has windows for lighting and ventilation of the house, and the attic has a form of a gable by repeating the materials of the lower floor. Inside, there are spaces connected by opening between floors. The opening between the first and second floors, the opening between the fifth and the attic floors, and the opening between the attic and the ceiling tried to connect between the disconnected floors. Brick tiles, which are external materials, are connected by corridors and stairs, and although they are simple core methods, they attract external feelings to the inside. It is a space containing housing, and it was intended to make the size and feeling of looking from the outside or from the inside different. This was expressed as a sense of rhythm of the window or a change in height according to privacy. I hope it will be reborn as a building somewhere in the corner where you can stay your eyes and communicate when walking down the alley.

Upcoming Events

  • Design Smarter: Leveraging GIS, BIM, and Open Data for Better Site Selection & Collaboration

    Live Webinar

    Register for Free
  • Slate Reimagined: The Surprising Advantages of Slate Rainscreen Cladding

    Webinar

    Register Now
  • The State of Residential Design Today: Innovations and Insights from RADA-Winning Architects

    Webinar

    Register for Free
All Events