Arizona State University Sun Devil Fitness Complex

Project Details

Project Name
Arizona State University Sun Devil Fitness Complex
Location
TempeAZ85287
Architect
Studio Ma
Project Types
Education
Shared By
UGC User
Project Status
Built
Year Completed
2013
Size
109,000 ft²
Certifications & Designations
LEED Platinum

Project Description

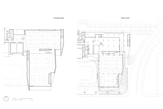
The Sun Devil Fitness Complex (SDFC) provides new student recreation and wellness facilities to Arizona State University’s Tempe community. Located adjacent to the existing student recreation building, the expansion includes a fitness center, wellness center, five new basketball courts, lounge and gaming areas, and a multi-activity court (MAC) for indoor soccer and field hockey. Student input during the programming phase emphasized the desire for a highly visible facility where students inside and outside the facility could view the activities happening around them. The Design Team responded by designing the facility with large expanses of shade-protected glass providing visual connections to the surrounding campus and the activities within. Three of the five basketball courts are located on the second floor with large windows providing views of the surrounding ASU campus. The MAC gym has floor to ceiling glass windows opening views to an adjacent campus roadway. An outdoor passageway under the second floor gym provides a gateway for students entering the campus from the south. The design of ASU's SDFC surpasses the Architecture 2030 Challenge goal for carbon reduction. It features desert-appropriate design strategies, including deep overhangs and louvers to shade all exterior glass, a cementitious rain screen cladding system, and rooftop solar thermal and photovoltaic systems. These together contribute to a 70% reduction in energy use intensity to achieve a design EUI of 35.1. This project was a collaboration of Studio Ma with Sasaki.

Upcoming Events

  • Design Smarter: Leveraging GIS, BIM, and Open Data for Better Site Selection & Collaboration

    Live Webinar

    Register for Free
  • Slate Reimagined: The Surprising Advantages of Slate Rainscreen Cladding

    Webinar

    Register Now
  • The State of Residential Design Today: Innovations and Insights from RADA-Winning Architects

    Webinar

    Register for Free
All Events