Architectural concept of the Russian Center of Science and Culture

Project Details

Project Name
Architectural concept of the Russian Center of Science and Culture
Location
the first sector of Dar-Ul-Aman HighwayKabulAfghanistan
Project Types
Cultural
Project Scope
New Construction
Shared By
A.Len
Project Status
Concept Proposal

Project Description

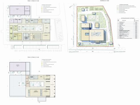
The complex consists of several blocks: the cultural center, the sports complex, the covered swimming pool and the inhabited block, also includes such functions as the library, showrooms, the business center with rooms for the international meetings and conferences, cinema, club and multipurpose rooms.
The core of the cultural center is the courtyard – the atrium which is traditional for many Asian countries.
The main entrance is accented by the strongly overhanging console, and the volume of the building is minimalist and laconic.
Facades are covered with the modern ornamental parametrical drawing which is created from elements borrowed from the Russian traditional ornaments. The drawing is performed as perforation in hinged concrete figured panels.

Upcoming Events

  • Design Smarter: Leveraging GIS, BIM, and Open Data for Better Site Selection & Collaboration

    Live Webinar

    Register for Free
  • Slate Reimagined: The Surprising Advantages of Slate Rainscreen Cladding

    Webinar

    Register Now
  • The State of Residential Design Today: Innovations and Insights from RADA-Winning Architects

    Webinar

    Register for Free
All Events