Architects Office / Temenos Gallery

Project Details

Project Name
Architects Office / Temenos Gallery
Location
1900 Wazee StreetSuite 100DenverUnited States80202
Project Types
Office
Shared By
Weather Time
Project Status
Built
Year Completed
2010
Size
5,838 ft²

Project Description

An expanding architectural firm’s need for a new office presented an opportunity to rethink how physical space can support ideation, allow clients to be the true focus of the design process, and facilitate the re-imaging of an architectural practice’s relationship to emerging architects, students and the public.

The new space satisfies these goals with the intervention of a minimalist design within one of Denver’s most historic buildings; dissolution of the traditional boundary between the front of house / public zone and the back of house studio / operations; the integration of a linear connective space, physically linking public and private functions; and the integration of a central gallery flexible zone that merges public and private space.

Overall, this malleable, experimental space is designed to evolve and respond to the ongoing shifts brought on by new generations and changing public perceptions / expectations of the profession itself.

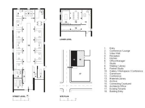
Embedded in the center of the studio, the ‘Temenos Gallery’ – centered around a 50-foot worktable – intentionally slices through the full length of this lofty cathedral-like space, dominating the long, narrow floor plan while catalyzing interaction and inclusion. The ancient Greek word ‘Temenos’ – which originally referred to a “sacred space within which magical things are free to occur” – not only informs the intention of the gallery, but also serves as a benchmark for the Studio’s overall design and the firm’s rigorous approach to creating pure and simple experiential spaces. It also invites the public to engage and learn as designers ideate around them. Since the opening of the office the Temenos Gallery has already begun to catalyze greater mutual discovery and interaction between worlds through the hosting of two exhibitions and a modern house competition.

Upcoming Events

  • Design Smarter: Leveraging GIS, BIM, and Open Data for Better Site Selection & Collaboration

    Live Webinar

    Register for Free
  • Slate Reimagined: The Surprising Advantages of Slate Rainscreen Cladding

    Webinar

    Register Now
  • The State of Residential Design Today: Innovations and Insights from RADA-Winning Architects

    Webinar

    Register for Free
All Events