Arapiraca

Project Details

Project Name
Arapiraca
Location
São PauloBrazil
Architect
Triptyque
Project Types
Project Scope
New Construction
Shared By
Ashleigh Popera
Project Status
Built
Year Completed
2016
Size
103,690 ft²
Team
Partner: Carol Bueno
Partner: Greg Bousquet
Partner: Gui Sibaud
Partner: Olivier Raffaelli
General Manager: Luiz Trindade
Project Manager: Bianca Coelho
Project Manager: Beatriz Hipólito
Visual Communication: Felipe Alves
Architect: Marcella Verardo
Architect: Murillo Fantinatti
Architect: Pedro de Mattos
Architect: André Mathias
Architect: Vinicius Capela

Project Description

FROM THE ARCHITECTS:

The new residential building in Vila Madalena district in São Paulo is made by Triptyque Architecture.

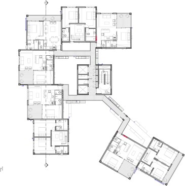
The particular urban base of Vila Madalena neighborhood in São Paulo defined the project created by Triptyque Architecture: a residential complex built in Arapiraca Street. The integration with its context—a neighborhood of old houses, close to bars and restaurants—was the main objective of Triptyque's architects, in order to make a natural dialogue between the 8000m2 volume of construction and its relief.

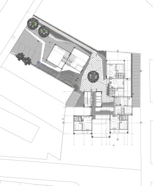
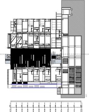
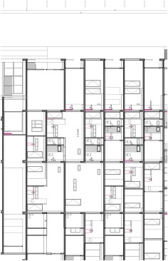
For this, the architects decided to split the complex into eight randomly distributed blocks, each one with an independent access, whose the position guarantees the best view and optimizes the ventilation and the natural luminosity. A ninth block shelters the elevators, the shafts and the stairs, it concentrates the exits of the metallic footbridges: place of circulation and socialization between the inhabitants.

The result is a configuration of apartments allowing for privacy equal to independent houses. With generous terraces and a wide ceiling-height, the units varies from studio to triplex and can have different layouts. The shared area in the upper floors and particulary the walkways, are bathed in sunlight and ventilated by the wind.

The collective memory of Vila Madalena takes place in the choice of coatings, which the predominance of projected concrete—rough and rustic material, almost primitive, in graphite color—is a reference to the very used coating for the old constructions of the district.

The historical reference also appears in ceramics, as a mention to the Portuguese, the first immigrants who occupied the region. The blue and white azulejos, a tribute to the artist Athos Bulcão, cover all internal facades. Smooth and reflective, they give life to the facades while illuminating the center of the ground. The apparent layers of the gabions give a brutalist aspect to the whole.

The vegetation plays a central role in this project, whether in the plats attached to the walkways, as in the ground-floor, where the green density creates an atmosphere of urban forest under the building. As if the building spring up from the jungle, opening like a square to the city.

At the building's both entrances, the porosity fades the limit between the ground and the sidewalk creating a blurred boundary between the public and the private, and thus revealing the generosity of the project as a whole.

"We have designed the Arapiraca building integrated to its context, but at the same time, with a striking and innovative presence," conclude the partners of Triptyque Architecture.

Upcoming Events

  • Slate Reimagined: The Surprising Advantages of Slate Rainscreen Cladding

    Webinar

    Register Now
  • The State of Residential Design Today: Innovations and Insights from RADA-Winning Architects

    Webinar

    Register for Free
  • Specifying Smarter with Copper-Clad Aluminum (CCA) Metal-Clad Cable

    Webinar

    Register for Free
All Events