Amirdasht Villa

Project Details

Project Name
Amirdasht Villa
Architect
MADO ARCHITECTS
Project Types
Single Family
Shared By
MADO
Project Status
On the Boards/In Progress
Style
Modern
Team
Architect: Mado Architects

Project Description

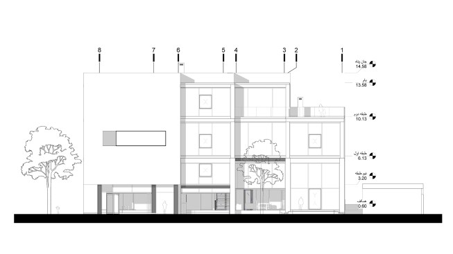
The project is a redesign of an existing project. The former project’s structure was a classic nine square grid. Analyzing the whole project and its limits, we have decided to redesign the building by minimum manipulate. The current design is a development of the mentioned grid with a steel frame structure. Considering the project’s potential, we enhance its program in a way that a guest room, with a steel frame structure, is added in a mezzanine.
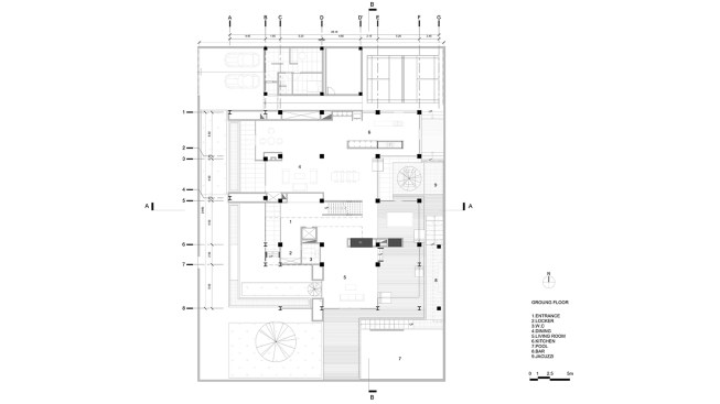
According to the project’s geometry, we merge the swimming pool with the entire ground level. On the ground level, due to the more fluidity of the spaces, the walls separated from the ground and introduced themselves in the form of suspended walls with various functions in space.
Head Architect: Maziar Dolatabadi
Lead Architect: Moein Nikaeen
Detail Design: Deniz Ebrahimi Azar
Faeghe Khalili
Interior Design: Marjan Mirkheshti
3D Design & Rendering: Roya Zeraatkar
Visualiser: Tina Shahnazari
Model: Marjan Mirkheshti
Detail Consultant: Ali Tirgan

Upcoming Events

  • Design Smarter: Leveraging GIS, BIM, and Open Data for Better Site Selection & Collaboration

    Live Webinar

    Register for Free
  • Slate Reimagined: The Surprising Advantages of Slate Rainscreen Cladding

    Webinar

    Register Now
  • The State of Residential Design Today: Innovations and Insights from RADA-Winning Architects

    Webinar

    Register for Free
All Events