Ambassador Housing

Project Details

Project Name
Ambassador Housing
Location
Emeryville, CACA
Project Types
Affordable Housing
Shared By
dmadsen
Project Status
Built
Size
112,800 ft²

Project Description

Ambassador housing is a new family-friendly affordable housing project located in an upcoming neighborhood on the Oakland/Emeryville border in California. What was once an abandoned industrial building and a target for squatters and illicit activity has now become an attractive gateway into the City of Emeryville. This development was built to serve households at 30% to 50% of Area Median Income.

The 34,280 square foot site, situated in a transitional neighborhood adjacent to a heavily traveled elevated freeway, presented several design challenges. The design reflects the site’s urban context, while acknowledging the smaller neighboring homes and minimizing the impact of the nearby freeway on residents.

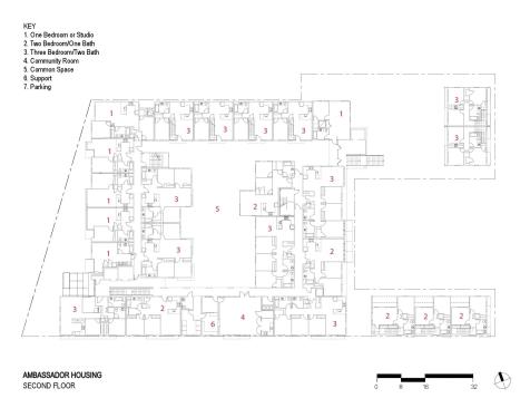
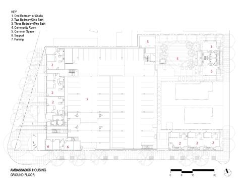
The 69 unit affordable housing project is comprised of three buildings, 1 on-site manager’s unit, 4 studios, 17 one-bedrooms, 23 two-bedrooms, and 24 three-bedrooms. Building A, at five stories, is situated closest to the freeway helping to block noise from traveling to the heart of the development. A central courtyard brings natural light into units and provides a sheltered landscape area for residents. Buildings B and C are both two-story townhouses with pitched roofs that maintain the scale of the adjacent single-family homes. Within the three-building site, play areas for children and landscaping contribute to a sense of community and unite the separate structures with the existing neighborhood.

To provide maximum insulation from freeway noise, acoustically appropriate building materials were used in the design and construction. The exterior of the building facing the freeway was built with an acoustic clip which has two layers of extra wallboard attached to it, isolating and insulating residents from the traffic noise.

On site amenities include a community room, a computer learning center, a landscaped courtyard, a children’s garden and playground, plus secured on-site parking and bike storage area with direct access into main building.

Upcoming Events

  • Reimagining Sense of Place: Materiality, Spatial Form, and Connections to Nature

    Webinar

    Register for Free
  • Homes that Last: How Architects Are Designing a Resilient Future

    Webinar

    Register Now
All Events