Alvand Office Tower

Project Details

Project Name
Alvand Office Tower
Location
TehranIran
Project Types
Project Scope
New Construction
Shared By
Gisue
Project Status
Built
Year Completed
2016
Size
6,000 ft²

Project Description

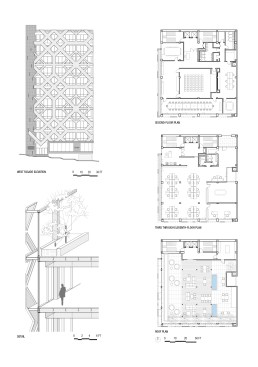
This office tower is located in the dense urban fabric in the center of Tehran. A simple rectilinear plan covers the whole site in a mid block with existing structures on two sides and an alleyway access to a building in the back.

What makes this 12 story office tower iconic, is its double skin exterior. The inner skin is mostly glass. The outer skin is a shading device made of composite aluminum panels fabricated with the aid of laser cutting and bending technology over a steel structure. The pattern chosen for this outer façade is inspired by cosmic symbol and motif of a mandala. This symbol is derived from the Persian belief that intersection between circle and a square is the geometric manifestation of paradise. This geometry is abstracted, repeated and folded on two sides of the outer facade. The outer skin acts as a brise-soleil, shielding the interiors from direct sun providing a healthy and sustainable working environment.

The two skins are approximately two and a half feet apart. With the aid of LED backlighting in this cavity, the whole structure glows at nights like a beacon of light. The geometric openings in the outer façade turn from negative into positive silhouettes, reminiscing Persian blue mosaic work on earlier structures and domes.

The Alvand Tower presents a balance between cultural identity and essential need for modernity. A dialogue between & interior and exterior, public & private, old & new are all debated and explored in this structure.

The circulation core occupies the north side of the building and is faced with stone tiles with small openings marking the entrance to the building. At the ground level there is retail space and an entrance lobby with ceiling articulation inspired by Persian squinches continuing the concept into the inside.

Upcoming Events

  • Build-to-Rent Conference

    JW Marriott Phoenix Desert Ridge

    Register Now
  • Reimagining Sense of Place: Materiality, Spatial Form, and Connections to Nature

    Webinar

    Register for Free
  • Homes that Last: How Architects Are Designing a Resilient Future

    Webinar

    Register Now
All Events