Alchemist

Project Details

Project Name
Alchemist
Project Types
Retail
Shared By
Xululabs
Project Status
Built
Size
1,726 ft²

Project Description

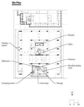
The perfect site for a new boutique is rarely wedged into the fifth floor of a parking garage, but in Miami Beach, Fla., Alchemist is proving conventional wisdom wrong. Of course, the scenario couldn’t work with just any store, or with just any parking garage: Roma Cohen and Erika Sussman already have a successful boutique farther down the street and a devoted clientele, and the setting is 1111 Lincoln Road, the Neapolitan-like Herzog & de Meuron design that merges parking, retail, and residences, and anchors the western terminus of Miami Beach’s main retail allée.

But even with such a pedigree, the retail world can be fickle, and success is never assured. The duo’s first step, they knew, would be to hire the right architect. “When we started the project, we were in the middle of a recession, so we knew we had to create something really, really exciting,” Cohen says. This brought them to Rene Gonzalez, AIA. The kind of designer who understands the world poetically, Gonzalez’s work is distinguished by a singular attention to environment—the hues of blue in the sky, movements of people, patterns of shade. It “is about making observations and putting them into architectural filters,” he says. When it came to designing the interior of a 1,726-square-foot glass cube housed in a car park, however, he was faced with an unusual context.

The views from the site are far-reaching, encompassing the Miami Beach cityscape and the area’s characteristic deep-blue sky. “You have a feeling of being in the clouds,” Gonzalez says. He kept the floor-to-ceiling glass free from obstruction to capitalize on these stunning vistas.

But this is, after all, an urban boutique in a busy parking garage, not a beachside meditation retreat. Concerned with context as Gonzalez is, he wanted the store to acknowledge that kind of energy. “We wanted to keep a connection with the parking garage and the busyness of the sidewalk below,” he says. To this end, the ceiling is lined with ribbons of mirrored panels, which then cascade down the walls, setting up a series of fragmentary views within and out of the space. There are infinity effects around the room, but views are often cropped—you can see the back of your head in one mirror and your feet in another—so the experience of moving through the store is always changing.

In an effort to amplify this visual energy, Gonzalez collaborated with Random International, a London-based art practice, to rig the mirrors into a kinetic installation. As a result, some individual panels move, pivoting on one edge, like a door. The result is a constantly changing kaleidoscopic effect. “The environment is fragmented, reflected, and reverberated around,” he says.

The subtle movements of the mirrors also attract the attention of street-level pedestrians, unifying the retail experience of the street and of the boutique five stories overhead. Taking this into account, the store was able to avoid using garish signage: Its presence speaks for itself. “The space is a store and a billboard,” Gonzalez says. On a sunny day, the mirrors in the store reflect the sky and the space emits an azure hue.

In addition to drawing people in, the space also needed to be flexible. “Sometimes we might want to just show a handful of pieces and other times, we may want to show much more,” Cohen says. “This is really a gallery space, so we wanted a blank canvas.”

In an effort to give Cohen and Sussman as much flexibility as possible, Gonzalez poured a 2-inch layer of a clear satin-finish concrete over the rougher garage slab. He included periodic perforations that hold custom clothing displays, so the space is unencumbered by bulky racks.

The pair admit that the decision to lease the equivalent of 13 glassed-in parking spaces for their new store was born more of instinct than wisdom. But having recently finished their first year with revenues 25 percent above projections, the gamble seems to be paying off.

Upcoming Events

  • Design Smarter: Leveraging GIS, BIM, and Open Data for Better Site Selection & Collaboration

    Live Webinar

    Register for Free
  • Slate Reimagined: The Surprising Advantages of Slate Rainscreen Cladding

    Webinar

    Register Now
  • The State of Residential Design Today: Innovations and Insights from RADA-Winning Architects

    Webinar

    Register for Free
All Events