Albion District Library

Project Details

Project Name
Albion District Library
Project Scope
New Construction
Shared By
katie_gerfen
Project Status
Built
Size
29,000 ft²

Project Description

This article appeared in the November 2018 issue of ARCHITECT:

This new neighborhood library shows that sustainable design can have as much to do with influencing communities as it does with energy reduction.

The Perkins+Will–designed Albion District Library in Toronto may be pretty energy efficient, but that’s not the building’s greatest environmental innovation, according to Toronto-based principal and design director Andrew Frontini, Assoc. AIA. Its greatest sustainability impact can be found in the social and societal issues that it addresses.

Located in Toronto’s Rexdale neighborhood—about a dozen miles northwest of downtown—Albion is one of the busiest public libraries in the city and serves a diverse community, including many recent immigrants who are frequent users. “We wanted to create social cohesion around the library,” Frontini says. The early results are quite positive: Use of the library is up 65 percent to 82,000 annual visitors and teen use is up by 75 percent, which speaks not only to the attractiveness and “coolness” factor of the design but to the building’s easy access by means other than car.

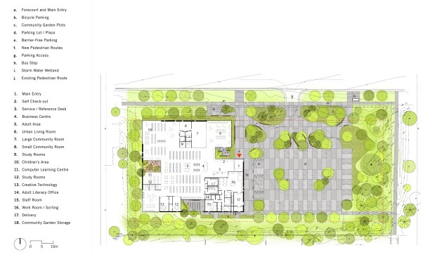
The site sits on six-lane Albion Road, with strip-style development to the north and a residential neighborhood to the south. Renovating and expanding the original library that stood on the east side of the lot may have seemed more sustainable, but consultation with users revealed that the subsequent two-year closure would have been highly detrimental to serving the local community’s needs. Thus, the original structure remained in operation while the 29,000-square-foot new building was constructed. Then the old library was razed for the new parking lot, which features permeable paving and abundant landscaping.

Despite the site’s auto-dominant context, it has a high Walk Score of 84. “And a lot of users don’t have cars,” Frontini says. Local zoning mandated lots of surface parking, but the designers negotiated with urban design and zoning officials to provide only 60 percent of the previous library’s parking spaces. That resulted in a much greener site plan—increasing vegetation from 49 percent to 62 percent of the site, and a thoughtful configuration that allows the entire parking area to become a public space surrounded by tall branching shade trees for markets and other events. A landscape buffer between the parking lot and street creates a sense of place within the open lot. Community garden plots are located behind the library, buffering the building from neighboring residences.

A polychrome terra-cotta screen wraps the exterior, providing a bright and memorable civic presence. The shell is essentially a box, its roof rising towards each of the four corners to reveal an open “porch” at the northeast that provides a clear public entry, and higher ceilings and a more notable public demeanor for the other quadrants. On the interior, the single-story volume is defined by four pavilions configured around three courtyard gardens.

While social sustainability may be the focus at Albion Branch Library, its 40 percent energy reduction isn’t exactly shabby. The designers achieved this goal by limiting the exterior building envelope to just 40 percent glazing—a figure which initially seems suspect as the structure appears quite glassy. That impression is in part due to the clever deployment of the colorful terra-cotta scrim—which reads as a playful brise-soleil—but, in fact, camouflages solid wall in many locations. The building is not a passive structure, Frontini says. Rather it employs a conventional set of systems that rely on an efficient envelope with a low glazing ratio and considerable insulation: R40 walls containing 125 millimeters (nearly 5 inches) of mineral wool insulation and a 200-millimeter-thick (nearly 8-inch-thick) layer at the roof.

“It’s about organizing a sensible and efficient envelope in a compact plan,” Frontini says. The major public spaces are configured for open, flexible use and 70 percent of the interior has direct views of the outdoors. Inserting the three courtyards within the main volume of the building helps, too. They are entirely glazed, and provide copious natural light to the interior, but their tight configuration makes them self-shading so they don’t contribute much to the solar heat gain of the building. The center of the building, where the roof is lowest, is programmed as the adult area and features a clerestory that provides another source of natural light. It’s a library, so lighting is critical to its users, and harnessing daylight allowed the designers to offset artificial lighting through sensors and dimmers to save energy. “We used Revit and Ecotech to map lighting levels,” Fontini explains—the result being even levels throughout the building during every hour of the day and season.

Flat ceilings are a generous 11 feet tall near the center of the building, and rise to about 18 feet at the corners, almost doubling the volume of those spaces. Given the desire to celebrate nature, it’s not surprising that the designers initially conceived the building as a timber structure, but a hybrid steel and timber design was eventually developed to lower construction costs. “There’s a hierarchy of materials,” Frontini explains—with steel defining the building’s geometries and FSC-certified timber decking (as well as wood finishes on surfaces from walls to millwork) used for infill. The locally sourced wood provides acoustical benefits, and wood purlins conceal the conventional mechanical system. Five percent of the building’s energy load is provided by rooftop photovoltaic panels that cover about half of the roof. The other half is green roof, and the shallow slopes towards the central courtyard leave each of these elements obscured from public view.

Colorful and inviting, the Albion District Library’s “welcoming presence,” as the COTE jury put it, promises to provide an accessible resource and gathering space for all area residents.

Albion District Library COT… by on Scribd

Project Credits
Project: Albion District Library, Toronto
Client: Toronto Public Library
Architect: Perkins+Will, Toronto . Andrew Frontini, Intl. Assoc. AIA (design principal); Aimee Drmic (project architect)
Interior Designer: Perkins+Will
Mechanical Engineer: Hidi Rae Consulting Engineers
Structural Engineer: Blackwell Structural Engineers
Electrical Engineer: Mulvey & Banani
Civil Engineer: MMM Group
General Contractor: Aquicon Construction
Landscape Architect: Dutoit Allsopp Hillier
Cost Consultant: Turner & Townsend
Size: 29,000 square feet
Cost: $12.4 million

Materials and Sources
Carpet: Interface
Ceilings: Geometrik (wood acoustic); USG
Exterior Wall Systems: NBK (ceramic)
Flooring: Centura (tile)
Furniture: Keilhauer, Interna (lounge); Coalesse, Vitra (children’s area)
Glass: Aerloc Industries (curtainwall)
Lighting Controls: Fluxwerx; Zaneen; Eurofase
Metal: Triumph Roofing & Sheet Metal
Millwork: Mallet Woodwork Co. (custom millwork)

Read expanded coverage of the winners of the 2018 AIA COTE Top Ten Awards.


From April 2018:

This project is a winner in the 2018 COTE Top Ten Green Projects Awards.

From the AIA:

One of the busiest libraries in Toronto, the Albion District Library serves a broad range of services to a diverse demographic, including many recent immigrants. Extensive community consultation shaped the design in fundamental ways, including the decision not to renovate and expand an existing library building, which would require a closure of nearly two years. Instead, our team proposed building a new library on the adjacent parking lot site, allowing the existing library to remain open through construction. The importance of the library as a community hub inspired the central architectural concept of an enclosed garden.

Metrics Snapshot:

Community engagement: Stakeholders were involved throughout most of the process

Walk score: 84

Percentage of the site area designed to support vegetation: 62

Percentage of site area supporting vegetation before project began: 49

Percentage of landscaped areas covered by native or climate appropriate plants supporting native or migratory animals: 50

Predicted annual consumption of potable water for all uses, including process water: 26 percent reduction in potable water use

Predicted consumed energy use intensity (EUI): 74.8 kBtu/sq ft/yr

Predicted Net EUI: 64.9 kBtu/sq ft/yr

Predicted Net carbon emissions: 32.7 lb/sq ft/yr

Predicted reduction from national average EUI for building type: 40 percent

Predicted lighting power density: 0.46 W/sq ft

Percentage of floor area or percentage of occupant work stations with direct views of the outdoors: 70 percent

Percentage of floor area or percentage of occupant work stations within 30 feet of operable windows: 0 percent

Percentage of floor area or percentage of occupant work stations achieving adequate light levels without the use of artificial lighting: 80 percent >300 lux at 3pm March 21

From the Architects:

At 29,000 square feet, the Albion District Library is one of the most well used of all the Toronto Public Libraries and serves a diverse neighbourhood population. Given the high needs nature of the community, closing down the library for renovation was not an option. In response to the community outcry, Perkins+Will proposed building a new Library on the adjacent parking lot site which would allow the existing Library to remain open and in use throughout construction. Once completed the existing Library would be demolished and the parking lot and landscaping would be rebuilt on the existing Library site.

Located along Albion Road, just west of Kipling Avenue, the new Albion District Library will house a Children's Area, a Computer Learning Centre, and a Digital Innovation + Maker Space (including a 3D printer and Urban Living Room). Innovative sustainability principles and advanced technologies are an integral part of the design, including a sloping green roof will guide rainwater into the adjacent courtyards. The new parking lot will also be designed as a multi-use space, functioning as a parking lot during the day for normal operating hours and serving as a community event space for special occasions.

Upcoming Events

  • Design Smarter: Leveraging GIS, BIM, and Open Data for Better Site Selection & Collaboration

    Live Webinar

    Register for Free
  • Slate Reimagined: The Surprising Advantages of Slate Rainscreen Cladding

    Webinar

    Register Now
  • The State of Residential Design Today: Innovations and Insights from RADA-Winning Architects

    Webinar

    Register for Free
All Events