Albert and Edith Adelman Residence Restoration

Project Details

Project Name
Albert and Edith Adelman Residence Restoration
Project Types
Single Family
Project Scope
Preservation/Restoration
Project Status
Built
Size
2,600 ft²

Project Description

2015 Residential Architect Design Awards
Restoration/Preservation
Award

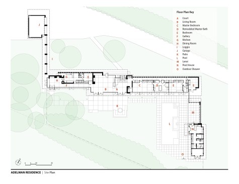
Built in 1948 for a young couple with three children, Frank Lloyd Wright’s Albert and Edith Adelman House is still inhabited by members of the Adelman family. The 2,600-square-foot Usonian home remained more or less unaltered until 2011, when the Kubala Washatko Architects was hired to do a comprehensive restoration. Acting as both architect and construction manager, the Cedarburg, Wis.–based firm replaced the home’s rotting wood-shake roof with water-resistant cedar shingles, installed a new epoxy-coated red concrete floor after removing the damaged original, and added an entry skylight—an unrealized part of Wright’s design. To update the mechanical systems, the architects dug new geothermal wells and integrated these with mini-split units hidden around the house. The master bathroom was reconfigured with the scrupulous care that is typical of the whole project. —Amanda Kolson Hurley

From the Jury

“This looks like almost a complete rebuild—like they went right down to the studs.” —Betsy Williamson

Project Credits

Architect: The Kubala Washatko Architects, Cedarburg, Wisc.—Tom Kubala, AIA, Allen Washatko, AIA
Project Size: 2,600 square feet
Construction Cost: $500 per square foot

Click here to see all of the winners from the 2015 Residential Architect Design Awards.

Upcoming Events

  • Design Smarter: Leveraging GIS, BIM, and Open Data for Better Site Selection & Collaboration

    Live Webinar

    Register for Free
  • Slate Reimagined: The Surprising Advantages of Slate Rainscreen Cladding

    Webinar

    Register Now
  • The State of Residential Design Today: Innovations and Insights from RADA-Winning Architects

    Webinar

    Register for Free
All Events