Albatross

Project Details

Project Name
Albatross
Location
LangebaanWestern CapeWest CoastSOUTH AFRICA
Architect
Orton Architects
Project Types
Single Family
Project Scope
New Construction
Shared By
Orton Architects
Project Status
On the Boards/In Progress
Year Completed
2022
Style
Other
Team
Mr: Jacques Orton
Mr: Ernest de Lange

Project Description

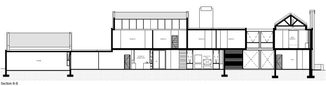
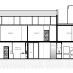
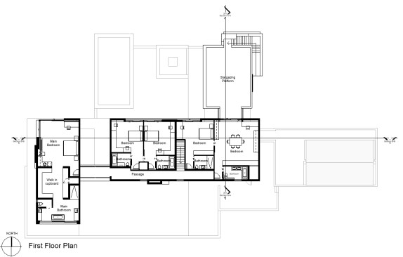
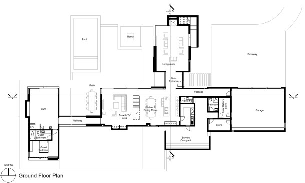
Nestled in the dunes on the outskirts of Langebaan, this 541m² family home is located on the beautiful west-coast of South Africa.
Responding to the beachfront environment of this Cape Fynbos site, the home is designed to withstand Langebaan’s dramatic climate conditions, where harsh sunlight and high winds are common. At the same time, the design allows the Bezuidenhout family to connect with the natural environment, with large timber shading sliding screens shielding the glass facades when necessary while still allowing the breeze to penetrate the interior. The patio and pool areas are located on the screened of western corner of the property thus providing protection from the prevailing wind.
The white washed walls of the home relate to the traditional colour of the local area, relating the architecture to its site and helping it merge with the natural condition of the region as it weathers over time.

Upcoming Events

  • Design Smarter: Leveraging GIS, BIM, and Open Data for Better Site Selection & Collaboration

    Live Webinar

    Register for Free
  • Slate Reimagined: The Surprising Advantages of Slate Rainscreen Cladding

    Webinar

    Register Now
  • The State of Residential Design Today: Innovations and Insights from RADA-Winning Architects

    Webinar

    Register for Free
All Events