Affordable Infill

Project Details

Project Name
Affordable Infill
Project Types
Affordable Housing
Project Scope
New Construction
Shared By
Miabelle Salzano
Project Status
On the Boards/In Progress
Year Completed
2018
Size
7,200 ft²

Project Description

FROM THE ARCHITECTS:

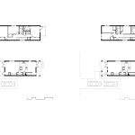
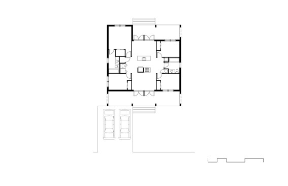
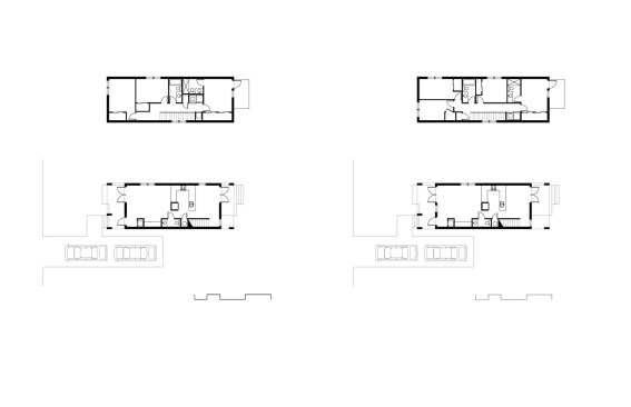
The new affordable and sustainable single-family infill homes were developed for alocal non-profit affordable housing provider operating in Deerfield Beach. Five prototypes were developed for six scattered sites across a historically Bahamian-American neighborhood. In order to achieve affordability the homes are designed for repeatability and flexibility (2, 3, and 4-bedroom types) beyond the neighborhood of initial development. The six infill lots are centrally located in the North Deerfield Beach neighborhood that has seen years of disinvestment, yet a five-minute walk from City Hall. Currently there is only 37% owner-occupancy and the primary challenge is to incentivize new home-ownership opportunities without displacing long-standing residents that have lived in the area for years and even generations. It is with this in mind that each prototype was designed and presented within an integrative design process with community stakeholders to ensure designs address the needs of neighborhood residents and meet strict thresholds of affordability as to target neighborhood median income level. The homes are designed to exceed the 2015 Enterprise Green Communities rating system and imbed water efficiency and conservation, energy efficiency, non-toxic and locally-sourced materials, native landscaping, and passive-design strategies.

The design team worked with the community and developer to understand the latent histories and identity of the place. This served as a platform in project development beyond the requirements of creating affordable and sustainable homes. In an effort to redevelop the neighborhood with climatic and socially responsive prototypes the design team reinterpreted vernacular residential types of subtropical hot-humid climates, like the bungalow, shotgun, and dogtrot. Screen lattice was included to shade the generous porches from direct sunlight and add privacy to the residents. Currently in permitting and bidding the homes are scheduled to be completed in early 2018.

Upcoming Events

  • Build-to-Rent Conference

    JW Marriott Phoenix Desert Ridge

    Register Now
  • Reimagining Sense of Place: Materiality, Spatial Form, and Connections to Nature

    Webinar

    Register for Free
  • Homes that Last: How Architects Are Designing a Resilient Future

    Webinar

    Register Now
All Events