AELP Fitness Centre

Project Details

Project Name
AELP Fitness Centre
Project Types
Shared By
August King
Project Status
Built
Year Completed
2015

Project Description

This is one of twelve American projects on the 2016 World Architecture Festival shortlist.

FROM THE ARCHITECTS:

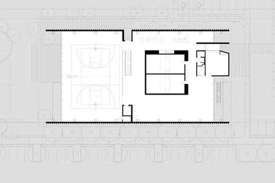
The AELP Fitness Center extends an unused basement structure in northern Oklahoma City into a sports and leisure hub. A series of arched steel trusses are placed over an existing concrete basement. The trusses are clad with industrial-scaled profile metal sheeting to enclose a singular hangar-like volume with fully-glazed gables. Two boxes are then inserted; a single storey steel-clad volume punches through the front gable to provide an entry vestibule to the east, while a larger cube is placed within the central space containing two racquetball courts within and an adaptable climbing wall on its western face. Additional internal facilities include a basketball court, fitness studios of varied sizes, changing and locker rooms and a café. On the outside a running track, courtyards, terraces and a sunken retention pond (which doubles as a volleyball court) cater for a wide range of external activities.

Upcoming Events

  • Design Smarter: Leveraging GIS, BIM, and Open Data for Better Site Selection & Collaboration

    Live Webinar

    Register for Free
  • Slate Reimagined: The Surprising Advantages of Slate Rainscreen Cladding

    Webinar

    Register Now
  • The State of Residential Design Today: Innovations and Insights from RADA-Winning Architects

    Webinar

    Register for Free
All Events