Ada’s Technical Books and Cafe

Project Details

Project Name
Ada’s Technical Books and Cafe
Architect
Board & Vellum
Project Types
Light Commercial
Project Scope
Renovation/Remodel
Shared By
mkrochmal
Project Status
Built
Year Completed
2014
Size
4,402 ft²

Project Description

Light Commercial / Citation
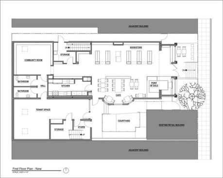
When owners Danielle and David Hulton opened their bookstore in 2010, they centered their philosophy around three cornerstones of Seattle culture: food, coffee, and technically minded citizens. When they moved to a new storefront last year, they added a fourth: sustainability. The team at supremely local firm Board & Vellum (its offices are a block away) created a 4,402-square-foot retail space in a 1922 house that was converted to retail space more than 30 years ago. With a goal of updating and opening the space while preserving the original detailing, the designers incorporated any reusable existing materials into the newly renovated space. Old doors found new life as bookcases and signage; café furniture was reused, as were salvageable timbers and framing, resulting in what juror Josh Shelton called “a sort of artful clutter,” while Gregory Hoss appreciated “the playfulness and quirkiness.” “The handmade and very local materials make it specific to that community,” juror Cary Bernstein said. “It’s visually innovative, even down to the furniture and lighting fixtures, and it’s a very fully considered space at all levels of design.” —Katie Gerfen

Upcoming Events

  • Slate Reimagined: The Surprising Advantages of Slate Rainscreen Cladding

    Webinar

    Register Now
  • The State of Residential Design Today: Innovations and Insights from RADA-Winning Architects

    Webinar

    Register for Free
  • Specifying Smarter with Copper-Clad Aluminum (CCA) Metal-Clad Cable

    Webinar

    Register for Free
All Events