Adamsville Regional Health Center

Project Details

Project Name
Adamsville Regional Health Center
Project Types
Healthcare
Shared By
dmadsen
Project Status
Built
Size
34,000 ft²

Project Description

2013 National Healthcare Design Awards
Category A: Built, Less than $25 million in construction cost

FROM THE AIA:

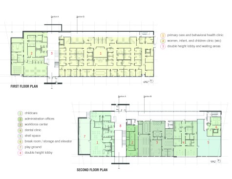
The 34,000-square-foot building houses a primary care clinic, a behavioral health clinic, childcare facilities, a dental clinic and a workforce community center. The co-location of these functions led the design team to consider the communal folk art of quilting and inspiration also came from the constructed paintings of contemporary Atlanta artist Radcliffe Bailey, who pieces together found objects, archival photographs and historic imagery with jazz-like effects. The design-build, fast-track project was completed, from start to finish, in 275 days. It required coordinating the participation of multiple stakeholders including the City of Atlanta and Fulton County governments, the contracting firm Whiting-Turner, Fulton County Board of Commissioners Vice Chair Emma Darnell, the Fulton County Office of Cultural Affairs, the staff of West End Medical Center and residents of the Adamsville neighborhood.

Upcoming Events

  • Slate Reimagined: The Surprising Advantages of Slate Rainscreen Cladding

    Webinar

    Register Now
  • The State of Residential Design Today: Innovations and Insights from RADA-Winning Architects

    Webinar

    Register for Free
  • Specifying Smarter with Copper-Clad Aluminum (CCA) Metal-Clad Cable

    Webinar

    Register for Free
All Events