A Gorgeous Residence

Project Details

Project Name
A Gorgeous Residence
Location
NewtonMA
Project Types
Shared By
dmadsen
Project Status
Built
Size
6,000 ft²

Project Description

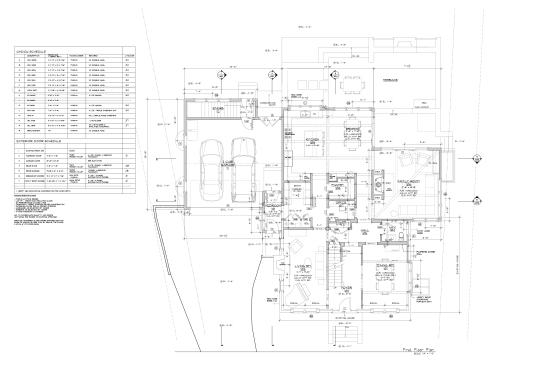
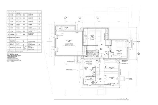
We took on this whole house renovation with the mission of creating a larger, functional home for a growing family. We looked to develop a better approach to the house with the addition of the new two car garage. Our team wanted to improve the flow of the home while offering a spacious feel. To accommodate the growing family, we installed all new infrastructures. We enlarged the family room and added playrooms to the finished basement, two bedrooms including a guest room, three new baths and a second floor laundry room.

The kitchen became the focal point of the renovation, as it serves as the center of activity in the home. Our goal was to blur the lines between the family room and the kitchen to create a large, open floor plan. The wall of windows along the back complements the generous eating area and takes advantage of the natural light from the beautiful back yard. All new appliances are used in the renovated space, along with new cabinetry that provides exceptional storage space.

The lower level of the home offers additional living space including a playroom, a home brewing center, wine cellar, and guest bathroom. The basement also features large aluminum doors recycled from the Mirro Aluminum Factory.

The home provides the perfect blend of modern and traditional details, yet maintains the original style fitting the neighborhood. Viewing the home from the front exterior, one would not realize the actual size of the home. We utilized various recycled products including reclaimed tile, oak for flooring and doors. We also incorporated green features such as solar panels for electricity and LED bulbs with the lighting fixtures. Fortunately, the southerly facing roof is not seen from the street and gave us a perfect spot for the panels. The small lot and deep excavation was a challenge, nevertheless we were able to create a gorgeous, practical home for the homeowners.

Upcoming Events

  • Design Smarter: Leveraging GIS, BIM, and Open Data for Better Site Selection & Collaboration

    Live Webinar

    Register for Free
  • Slate Reimagined: The Surprising Advantages of Slate Rainscreen Cladding

    Webinar

    Register Now
  • The State of Residential Design Today: Innovations and Insights from RADA-Winning Architects

    Webinar

    Register for Free
All Events