A Frame in Denver

Project Details

Project Name
A Frame in Denver
Location
618 South Monroe WayDenverCOUnited States80209
Architect
Anne Wattenberg
Project Types
Single Family
Project Scope
Preservation/Restoration
Shared By
ANNE WATTENBERG
Project Status
Built
Year Completed
2014
Size
2,000 ft²

Project Description

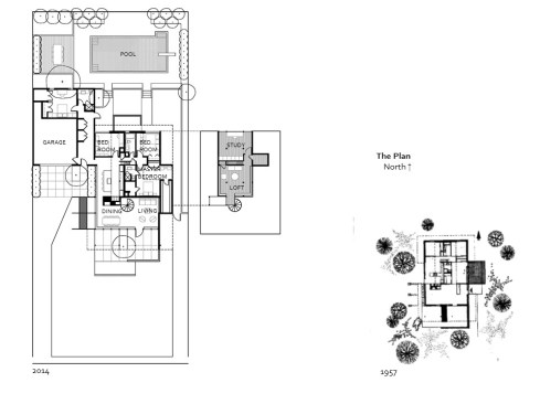
A-Frame in Denver is the restoration and renovation of W.C. Muchow’s 1954 family home. Mr. Muchow who was educated at Cranbrook Academy was one of the leading modernists in Denver CO during the second half of the 20th Century. In 1957 the house won an Award of Merit from Sunset Magazine and was an Architectural Record House. In its citation, Architectural Record wrote that Mr. Muchow’s design “has been carried out forthrightly here . . . but with imagination . . . to produce a very festive unstereotyped home. A three-dimensional approach, developing the structure along with the plan, gives unusual spaciousness and livability for the inexpensive house on a small plot.”*
 
A-Frame was the Muchow family home until the 1970s after which it changed hands several times and fell off of the architectural radar. Begun in 2006, the goal of the A-Frame project was to restore and amplify the geometry of the house. Alterations and additions that had obscured the lines of the structure were cleared away; the signature design elements were revealed and restored but with a contemporary sensibility.

A-Frame in Denver proves that Mr. Muchow’s clean and efficient approach in the 1950s remains a fresh and delightful solution to the small urban home.

Upcoming Events

  • Slate Reimagined: The Surprising Advantages of Slate Rainscreen Cladding

    Webinar

    Register Now
  • The State of Residential Design Today: Innovations and Insights from RADA-Winning Architects

    Webinar

    Register for Free
  • Specifying Smarter with Copper-Clad Aluminum (CCA) Metal-Clad Cable

    Webinar

    Register for Free
All Events